Teren industrial 9.640 mp, Craiova, in spatele Aeroport

674.800 €
70 € / mp

Gherceşti, Craiova

Suprafață teren:
9.640 mp

Descriere teren

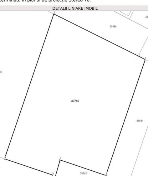
Blitz va propune o oportunitate unica de investitie in una dintre cele mai dinamice zone de dezvoltare din Craiova. Se ofera spre vanzare un teren industrial de 9.640 mp, situat in spatele Aeroportului din Craiova, cu acces direct la drum asfaltat si toate utilitatile disponibile apa, curent, gaze si internet. Suprafata totala: 9.640 mp Deschidere la drum: 40 metri Adancime: 101 metri Regim de folosinta: teren industrial Acces facil la infrastructura principala a orasului si la artere de transport importante Teren parcelabil posibilitatea de impartire in loturi de minimum 2.000 mp (eligibile pentru obtinerea autorizatiilor) (aprox. 70 /mp o valoare excelenta raportata la potentialul zonei si utilitatile existente) Avantaje: -Pozitionare strategica, ideala pentru dezvoltare industriala, logistica, depozitare sau productie -Acces rapid catre Aeroportul Craiova si centura orasului -Zona in continua expansiune, cu potential major de apreciere a valorii in urmatorii ani Contacteaza-ne pentru mai multe detalii sau pentru o vizionare la fata locului! Profita de aceasta oportunitate reala de investitie intr-o zona industriala aflata in plina dezvoltare! Cod oferta / ID BLITZ: P157733 Id intern: P157733
Citește mai mult Citește mai puțin

Detalii teren

ID anunț: 2713350 Actualizat în: 19 Martie 2026
Suprafață teren: 9.640 mp
Front stradal: 79 m

Istoric preț

Puncte de interes

Mijloace transport
transport
Teatrul National
Mijloace transport aprox. 32 m
transport
Teatrul National
Mijloace transport aprox. 34 m
transport
Teatrul National
Mijloace transport aprox. 80 m
transport
Teatrul National
Mijloace transport aprox. 80 m
Școală
education
Universitatea din Craiova
Învățământ aprox. 132 m
education
Gradinita Tudor Vladimirescu
Învățământ aprox. 465 m
education
Scoala Gimnaziala Traian
Învățământ aprox. 525 m
education
Colegiul National Elena Cuza
Învățământ aprox. 573 m
Recreere
restaurants
KFC
Restaurante aprox. 127 m
parks
Parcul Teatrului
Recreere aprox. 139 m
shopping
Careefour
Supermarket/Mall aprox. 460 m
shopping
Mercur Center
Supermarket/Mall aprox. 558 m

Proprietăți similare

Teren în Central
725.000 €
Craiova, Central
Teren de 5000 mp, în Central
725.000 €
Craiova, Central
5.000 mp teren
Teren de 5000 mp, în Central
725.000 €
Craiova, Central
5.000 mp teren
Teren de 7500 mp, în Nord
675.000 €
Craiova, Nord
7.500 mp teren
Teren de 12085 mp, în Central
700.000 €
Craiova, Central
12.085 mp teren
Teren de 13000 mp, în Mofleni
650.000 €
Craiova, Mofleni
13.000 mp teren
Teren de 770 mp, în 1 Mai
630.000 €
Craiova, 1 Mai
770 mp teren
Teren de 24000 mp, în Șimnicu de Sus
699.000 €
Județul Dolj, Șimnicu de Sus
24.000 mp teren
Teren de 9498 mp, în Central
690.000 €
Județul Dolj, Filiași
9.498 mp teren

Abonează-te la newsletter să fii primul care primește cele mai noi recomandări de proprietăți și sfaturi de la experți.