Teren 2000 mp, E. Grigorescu | Potential Dezvoltare | Zona Premium

1.800.000 €
904.07 € / mp

Grigorescu, Cluj-Napoca

Suprafață teren:
1.991 mp

Descriere teren

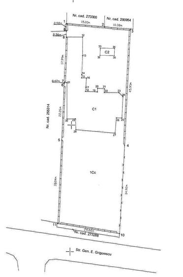
Proprietatea unica, situata intr-o zona istorica premium a municipiul Cluj-Napoca, ideal pentru Investitie, iese in evidenta prin cele doua fronturi la drumuri publice, de 25ml si 81ml, precum si suprafata generoasa de 1.991mp, cu posibilitatea de extindere pana la 2.200mp.Locatia este UNICA, pe strada Gral. Eremia Grigorescu 106, la 3 minute de Cluj Arena si BT Arena, 5 min de Centrul Cluj-Napoca, statii de autobus sau si destinatii posibile, proprietatea permite multiple oportunitati investitionale precum dezvoltarea unui imobil pentru servicii de tip Birouri, Clinica medicala, Hotel, Spatiu expozitional, samd. Este singura parcela din zona cu UAT propriu, in noul PUG destinatia de servicii fiind cea recomandata, avand urmatorii indicatori urbanistici de exceptie:Regim de inaltime max admis: P+3+MCUT maxim: 2.8POT maxim: 75%Asta inseamna, pentru un investitor, posibilitatea de a dezvolta intre 5.600 si 6.200 mp construiti intr-o zona premium a municipiului Cluj-Napoca si cu un cost al terenului de numai 321 eur/mp construit, putand obtine o investitie finala de peste 15 mil euro.
Citește mai mult Citește mai puțin

Detalii teren

ID anunț: 4021195 Actualizat în: 31 Martie 2026
Suprafață teren: 1.991 mp

Istoric preț

Puncte de interes

Mijloace transport
transport
Piata 14 Iulie Nord
Mijloace transport aprox. 271 m
transport
Piata 14 Iulie Sud
Mijloace transport aprox. 277 m
transport
Piata 14 Iulie
Mijloace transport aprox. 280 m
transport
Statia P-ta 14 Iulie, Linia 26, 27, 28, 41, CORA
Mijloace transport aprox. 290 m
Școală
education
Liceul Teoretic Onisifor Ghibu
Învățământ aprox. 336 m
education
Gradinita Steluta Fermecata
Învățământ aprox. 415 m
education
Gradinita Licuricistr. 2
Învățământ aprox. 441 m
education
Scoala Speciala pentru Deficienti de Auz Nr. 2
Învățământ aprox. 715 m
Recreere
restaurants
Las Vegas Caffe
Restaurante aprox. 24 m
parks
Parc
Recreere aprox. 264 m
shopping
Mega Image
Supermarket/Mall aprox. 1102 m
shopping
OUTLET
Supermarket/Mall aprox. 1350 m

Proprietăți similare

Teren de 16500 mp, în Sopor
1.980.000 €
Cluj-Napoca, Sopor
16.500 mp teren
Teren de 6000 mp, în Europa
1.800.000 €
Cluj-Napoca, Europa
6.000 mp teren
Teren de 13780 mp, în Florești
1.791.790 €
Județul Cluj, Florești
13.780 mp teren
Teren de 13780 mp, în Florești
1.791.790 €
Județul Cluj, Florești
13.780 mp teren

Abonează-te la newsletter să fii primul care primește cele mai noi recomandări de proprietăți și sfaturi de la experți.