Teren 600 mp cu Autorizatie de construire casa individuala,

54.000 €
91.68 € / mp

Central, Cluj-Napoca

Suprafață teren:
589 mp

Descriere teren

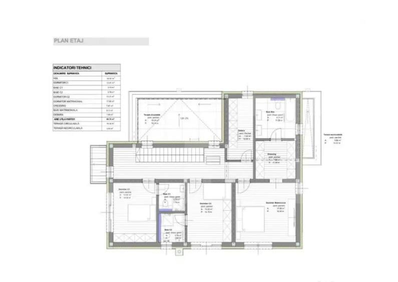
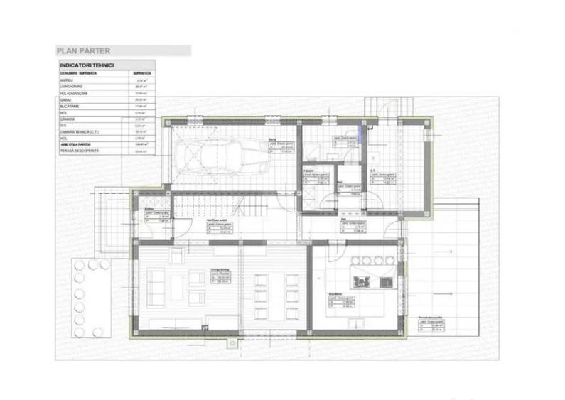
Blitz ofera teren autorizat in vederea constructiei unei case individuale in zona centrala a Apahidei. Regimnul de inaltime este de P + E, suprata terenului este de 589 mp+ 11 mp cota drum si acces din drum asfaltat. Compartimentarea casei este urmatoarea: Parter- Bucatarie, living, loc de luat masa, baie, camera tehnica, debara, antreu, hol si un garaj. Etaj- 3 dormitoare, fiecare cu baie proprie, dressing, debara, hol si o terasa de 15 mp Suprafata utila a constructiei este de 210 mp. Utilitatile sunt in aproprierea terenului. Cod oferta / ID BLITZ: P3588 Id intern: P3588
Citește mai mult Citește mai puțin

Detalii teren

ID anunț: 637483 Actualizat în: 23 Februarie 2026
Suprafață teren: 589 mp
Front stradal: 16 m

Istoric preț

Puncte de interes

Școală
education
Scoala Veche
Învățământ aprox. 207 m
education
Scoala Noua
Învățământ aprox. 700 m
education
Gradinita
Învățământ aprox. 781 m
Recreere
parks
Teren de Tenis
Recreere aprox. 1409 m
parks
Terend de Fotbal
Recreere aprox. 1435 m
restaurants
Birtul local
Restaurante aprox. 1798 m

Proprietăți similare

Teren de 1000 mp, în Central
50.000 €
Cluj-Napoca, Central
1.000 mp teren
Teren de 1100 mp, în Făget
55.000 €
Cluj-Napoca, Făget
1.100 mp teren
Teren de 700 mp, în Iris
55.000 €
Cluj-Napoca, Iris
700 mp teren
Teren în Aiton
50.000 €
Județul Cluj, Aiton
Teren de 900 mp, în Luna
52.000 €
Județul Cluj, Luna
900 mp teren
Teren de 500 mp, în Chinteni
50.000 €
Județul Cluj, Chinteni
500 mp teren
Teren de 2094 mp, în Chinteni
52.000 €
Județul Cluj, Chinteni
2.094 mp teren
Teren intravilan de 2000 mp, în Luna
50.000 €
Județul Cluj, Luna
2.000 mp teren
Teren de 766 mp, în Chinteni
53.000 €
Județul Cluj, Chinteni
766 mp teren

Abonează-te la newsletter să fii primul care primește cele mai noi recomandări de proprietăți și sfaturi de la experți.