
Mai mult de un an
1
- Agenție
BLITZ Romania
1.400.000 €
Actualizat pe: 18 Oct 2025
-
Biserica Borhanci Vest
aprox. 168 m -
Biserica Borhanci Est
aprox. 183 m -
Voievodul Menumorut Vest
aprox. 355 m -
Voievodul Menumorut Est
aprox. 363 m -
Borhanci Est
aprox. 551 m -
Borhanci Vest
aprox. 609 m -
Voievodul Gelu Vest
aprox. 990 m -
Voievodul Gelu Est
aprox. 996 m -
Violetelor
aprox. 1428 m -
Theodor Pallady
aprox. 1442 m -
Borhanciului
aprox. 1957 m -
Antim Ivireanul
aprox. 1962 m
Teren intravilan 16969 mp, front 350 ml , panorama deosebita
1.400.000 €
Borhanci, Cluj-Napoca
Descriere
Raportează anunț
Sesizează o problemă
Teren intravilan 16969 mp, front 350 ml , panorama deosebita
Teren intravilan 16969 mp, front 350 ml , panorama deosebita
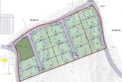
Blitz Imobiliare ofera spre vanzare teren intravilan situat in cartierul Borhanci. Suprafata masoara 16969 mp, iar frontul stradal este de 353 ml, respectiv 53 ml. Accesul se face pe un drum public si unul privat, cu latimea de 9 m. Regimul de inaltime permis este D+P+E+M, POT-ul este de 35%, iar CUT-ul de 0,9. De asemenea, dispune de Extras de Carte Funciara si Certificat Urbanism.S-au inceput demersurile pentru elaborare Puz Cod oferta / ID BLITZ: P4158 Id intern: P4158 Publicat prin HomeZZ.ro, vezi anuntul complet aici.
Citește mai mult
Citește mai puțin
ID anunț: 2559505
Actualizat în: 18 Octombrie 2025
Suprafață teren:
16.969 mp
Istoric preț
Proprietăți similare
Abonează-te la newsletter să fii primul care primește cele mai noi recomandări de proprietăți și sfaturi de la experți.
Căutări similare
- Terenuri de vânzare în Borhanci
- Terenuri de vânzare în Cluj-Napoca
- Terenuri de vânzare în Central
- Terenuri de vânzare în Iris
- Terenuri de vânzare în Someșeni
- Terenuri de vânzare în Făget
- Terenuri de vânzare în Bună Ziua
- Terenuri de vânzare în Mănăștur
- Terenuri de vânzare în Sopor
- Terenuri de vânzare în Dâmbul Rotund
- Terenuri de vânzare în Grigorescu
- Terenuri de vânzare în Europa