
3 luni în urmă
10
- Agenție
1
Ionut Paraschiv
4.977 €
Actualizat pe: 30 Sep 2025
-
Parc Mic
aprox. 200 m -
Parcul Garii
aprox. 364 m -
Parcul Ocolului Silvic
aprox. 861 m
Teren intravilan Agas, ID: R2575716
4.977 €
Agăș, Județul Bacău
Descriere
Raportează anunț
Sesizează o problemă
Teren intravilan Agas, ID: R2575716
Teren intravilan Agas, ID: R2575716
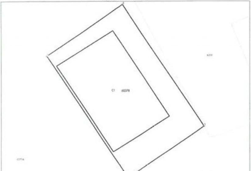
Vanzare prin licitatie publica teren intravilan Adresa: SAT Agas, com Agas, jud Bacau Teren intravilan avand categoria de folosinta curtii constructii cu suprafata de 238 mp Cladire Moara cu suprfata construita 121.16 mp - Demolata la momentul inspectiei Proprietatea analizata este formata dintr-un teren intravilan, partial imprejmuit cu gard de tip gabion si gard din tabla, in suprafata de 238 mp, pe care s-a aflat o cladire moara in suprafata de 121.16 mp Deschidere 19,53 ml. Publicat prin HomeZZ.ro, vezi anuntul complet aici.
Citește mai mult
Citește mai puțin
ID anunț: 2285261
Actualizat în: 30 Septembrie 2025
Suprafață teren:
238 mp
Clasificare teren:
Intravilan
Istoric preț
Proprietăți similare
Abonează-te la newsletter să fii primul care primește cele mai noi recomandări de proprietăți și sfaturi de la experți.
Căutări similare
- Terenuri de vânzare în Agăș
- Terenuri de vânzare în Bacău
- Terenuri de vânzare în Ardeoani
- Terenuri de vânzare în Nicolae Bălcescu
- Terenuri de vânzare în Horgești
- Terenuri de vânzare în Săucești
- Terenuri de vânzare în Balotești
- Terenuri de vânzare în Bogdănești
- Terenuri de vânzare în Filipești
- Terenuri de vânzare în Lilieci
- Terenuri de vânzare în Mărgineni
- Terenuri de vânzare în Filipeni