Teren intravilan 2726 mp in Tocile pretabil casa de vacanta

131.000 €
48.06 € / mp

Sadu, Judeţul Sibiu

Suprafață teren:
2.726 mp
Tip teren:
Construcții

Descriere teren

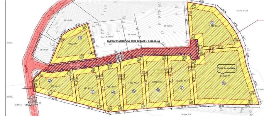
Va propun spre vanzare un teren intravilan cu o suprafata generoasa de 2726 mp, situat in localitatea Tocile, una dintre cele mai cautate locatii pentru dezvoltarea de case de vacanta si pensiuni turistice. Proprietatea este parte dintr-un ansamblu de 9 parcele, toate avand deschidere la acelasi drum de acces privat cu latimea de 8 metri, drum prevazut in documentatia PUZ aferenta zonei. Zona se remarca prin liniste, peisaje naturale si un cadru ideal pentru cei care isi doresc o locuinta intr-un mediu curat, aerisit si neaglomerat, dar totodata aflat la doar cateva minute de municipiul Sibiu. Conform Regulamentului Local de Urbanism aferent PUZ-ului se pot realiza constructii cu functiuni turistice si de recreere, precum case de vacanta, pensiuni, bungalow-uri si anexe aferente acestora, cu respectarea urmatorilor indici urbanistici si conditii tehnice: Regim de inaltime admis: P+E (inaltime maxima la coama 11 m, streasina 7 m) POT maxim: 35% CUT maxim: 0.7 Retrageri fata de limite: minim 5–7 m la strada, minim 3 m lateral spate Suprafata minima a unei parcele construibile: 350 mp Utilizari admise: case de vacanta, pensiuni turistice, bungalow-uri, servicii turistice, anexe Obligativitatea amenajarii de spatii verzi minime: 30% din teren Toate locurile de parcare trebuie realizate pe parcela proprie Drumul de acces este inclus in proiectul de dezmembrare, are 8 metri latime si urmeaza sa fie notat in cartea funciara ca drum cu servitute de trecere pentru toate parcelele din ansamblu, conform cerintelor urbanistice. Utilitatile se afla la aproximativ 200 de metri de teren, putand fi extinse in mod organizat si eficient, fie individual, fie prin asociere cu ceilalti proprietari din zona. Documentatia urbanistica mentioneaza racordarea la reteaua electrica si de apa-canal existenta. Terenul are o forma regulata, este bine proportionat si ofera posibilitatea configurarii optime a unei constructii, beneficiind de o deschidere generoasa si de o pozitionare excelenta fata de drum. Zona este in plina dezvoltare, cu potential mare atat pentru investitii turistice, cat si pentru constructia unei locuinte permanente intr-o zona retrasa si ferita de trafic. Valoarea terenului est de 131.000 euro.
Citește mai mult Citește mai puțin
Electricitate Apă Canalizare

Detalii teren

ID anunț: 3378889 Actualizat în: 06 Martie 2026
Suprafață teren: 2.726 mp
Tip teren: Construcții
Clasificare teren: Intravilan
Front stradal: 40 m

Istoric preț

Facilități

Utilități
Apă Canalizare Curent
Amenajare străzi
De pământ
Alte caracteristici
Oportunitate de investiție Acces auto

Puncte de interes

Recreere
parks
Teren sportiv
Recreere aprox. 995 m
parks
Teren sportiv
Recreere aprox. 1007 m
parks
Teren sportiv
Recreere aprox. 1637 m

Proprietăți similare

Teren Construcții intravilan de 829 mp, în Sadu
122.000 €
Județul Sibiu, Sadu
829 mp teren
Construcții
Teren Construcții intravilan de 1915 mp, în Sadu
124.500 €
Județul Sibiu, Sadu
1.915 mp teren
Construcții
Teren Construcții intravilan de 3100 mp, în Cisnădie
129.900 €
Județul Sibiu, Cisnădie
3.100 mp teren
Construcții
Teren Construcții intravilan de 1409 mp, în Cisnădioara
126.810 €
Județul Sibiu, Cisnădioara
1.409 mp teren
Construcții
Teren Construcții intravilan de 5987 mp, în Șelimbăr
120.990 €
Județul Sibiu, Șelimbăr
5.987 mp teren
Construcții
Teren Construcții intravilan de 1960 mp, în Cisnădioara
137.000 €
Județul Sibiu, Cisnădioara
1.960 mp teren
Construcții
Teren Construcții intravilan de 1340 mp, în Cisnădioara
139.000 €
Județul Sibiu, Cisnădioara
1.340 mp teren
Construcții
Teren Construcții intravilan de 5129 mp, în Bradu
125.000 €
Județul Sibiu, Bradu
5.129 mp teren
Construcții
Teren Construcții intravilan de 1010 mp, în Slimnic
120.000 €
Județul Sibiu, Slimnic
1.010 mp teren
Construcții

Abonează-te la newsletter să fii primul care primește cele mai noi recomandări de proprietăți și sfaturi de la experți.