TEREN INTRAVILAN CU AUTORIZATIE DE CONSTRUCTIE PT 2 CASE INDIVIDUALE

160.320 €
80 € / mp

Popeşti, Judeţul Cluj

Suprafață teren:
2.004 mp
Tip teren:
Construcții

Descriere teren

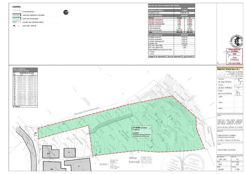
Teren intravilan, suprafata de 2004 mp, conectat la utilitati: gaz, curent trifazic, apa, canalizare (trasa recent). Terenul are autorizatie de constructie pentru 2 imobile , autorizatie valabila pana la data 01.11.2026, plus cei doi ani pentru finalizare a constructiilor.
Citește mai mult Citește mai puțin

Detalii teren

ID anunț: 2612112 Actualizat în: 05 Ianuarie 2026
Suprafață teren: 2.004 mp
Tip teren: Construcții
Clasificare teren: Intravilan
Front stradal: 20 m

Istoric preț

Proprietăți similare

Teren Construcții intravilan de 2300 mp, în Popești
172.500 €
Județul Cluj, Popești
2.300 mp teren
Construcții
Teren Construcții intravilan de 2004 mp, în Popești
160.320 €
Județul Cluj, Popești
2.004 mp teren
Construcții
Teren Construcții intravilan de 2880 mp, în Florești
150.000 €
Județul Cluj, Florești
2.880 mp teren
Construcții
Teren Construcții intravilan de 533 mp, în Florești
170.000 €
Județul Cluj, Florești
533 mp teren
Construcții
Teren Construcții intravilan de 700 mp, în Feleacu
159.900 €
Județul Cluj, Feleacu
700 mp teren
Construcții
Teren Construcții intravilan de 1166 mp, în Chinteni
144.500 €
Județul Cluj, Chinteni
1.166 mp teren
Construcții
Teren Construcții intravilan de 2307 mp, în Sălicea
149.955 €
Județul Cluj, Sălicea
2.307 mp teren
Construcții
Teren Construcții intravilan de 4826 mp, în Aghireșu-Fabrici
175.000 € + TVA
Județul Cluj, Aghireșu-Fabrici
4.826 mp teren
Construcții
Teren Construcții extravilan de 1650 mp, în Iris
159.999 €
Cluj-Napoca, Iris
1.650 mp teren
Construcții

Abonează-te la newsletter să fii primul care primește cele mai noi recomandări de proprietăți și sfaturi de la experți.