
2 luni în urmă
4
- Agenție
Emil Chirila
33.990 €
Actualizat pe: 22 Sep 2025
-
M-Xamus V
aprox. 947 m -
M-Xamus
aprox. 947 m -
M-Xamus E
aprox. 953 m -
M-Garden V
aprox. 1373 m -
M-Garden E
aprox. 1380 m -
M-Garden
aprox. 1380 m -
M-Chinteni
aprox. 1385 m -
M-Chinteni V
aprox. 1385 m -
M-Chinteni E
aprox. 1387 m -
M-Chinteni Lac
aprox. 1387 m -
Catun Vest
aprox. 1409 m -
Catun Est
aprox. 1421 m -
M-Primaria Chinteni V
aprox. 1738 m
Parcela 872.6 mp, intravilan Chinteni, duplex sau casa individuala
33.990 €
Chinteni, Județul Cluj
Descriere
Raportează anunț
Sesizează o problemă
Parcela 872.6 mp, intravilan Chinteni, duplex sau casa individuala
Parcela 872.6 mp, intravilan Chinteni, duplex sau casa individuala
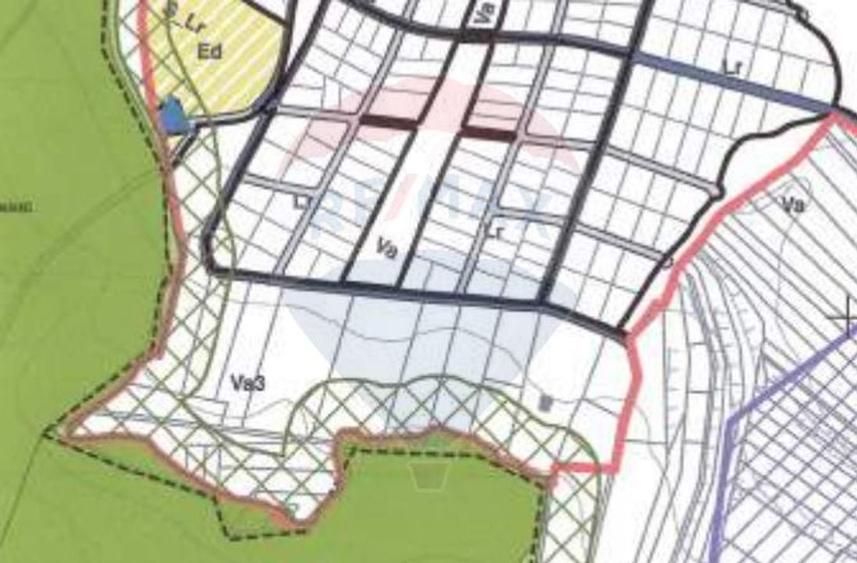
Va oferim pentru achizitionare o parcela de teren de 872,60 mp din care nu mai trebuie cedat pentru drum sau alte artificii urbanistice, situata in Chinteni, zona de locuinte rurale cu regim redus de inaltime (UTR Lr), unde se pot construi locuinte unifamiliale sau de tip duplex, amplasate izolat pe parcela si anexe ale acestora (garaje, filegorii, imprejmuiri, amenajari exterioare, platforme carosabile si pietonale).
Parcela este dimensionata conform regulamentului de urbanism al zonei, urmand sa se poata autoriza pentru construire fara alte demersuri de urbanizare (PUZ, PUD etc).
Accesul la parcele se face de pe drum cadastrat, actualmente partial asfaltat, partial pietruit, iar utilitatile sunt la o distanta de aproximativ 450 m.
Tinand cont de:
- locatie;
- stadiu final al reglementarilor de urbanism - revizuire PUG cu implementare certa;
- autorizare constructie fara alte demersuri;
- pret extrem de accesibil comparativ cu alte oferte;
- documente 100% clare si in regula pentru tranzactionare imediata.
Va invit la analiza si vizionare!
Citește mai mult
Citește mai puțin
ID anunț: 6562717
Actualizat în: 22 Septembrie 2025
Suprafață teren:
872 mp
Tip teren:
Construcții
Clasificare teren:
Intravilan
Istoric preț
Utilități
Utilități
Apă
Proprietăți similare
Abonează-te la newsletter să fii primul care primește cele mai noi recomandări de proprietăți și sfaturi de la experți.
Căutări similare
- Terenuri construcții de vânzare în Chinteni
- Terenuri construcții de vânzare în Cluj-Napoca
- Terenuri construcții de vânzare în Florești
- Terenuri construcții de vânzare în Feleacu
- Terenuri construcții de vânzare în Dezmir
- Terenuri construcții de vânzare în Sălicea
- Terenuri construcții de vânzare în Popești
- Terenuri construcții de vânzare în Gilău
- Terenuri construcții de vânzare în Apahida
- Terenuri construcții de vânzare în Baciu
- Terenuri construcții de vânzare în Gheorghieni
- Terenuri construcții de vânzare în Mărișel