Proiect autorizat 4 duplexuri (8 unitati) – teren intravilan 2700 mp Chinteni

360.000 € + TVA
133.33 € + TVA / mp

Chinteni, Judeţul Cluj

Suprafață teren:
2.700 mp
Tip teren:
Construcții

Descriere teren

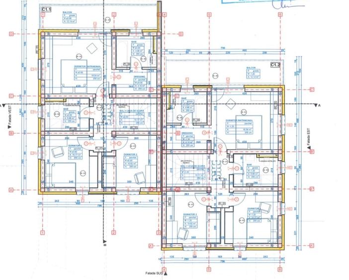
Teren cu autorizatie de construire pentru 4 duplexuri (8 unitati locative) – Chinteni, Cluj, 2700 mp Se ofera spre vanzare un teren intravilan in suprafata de 2700 mp, situat in Chinteni, zona aflata in continua dezvoltare rezidentiala. Proprietatea dispune de autorizatie de construire pentru 4 duplexuri (8 unitati locative), ceea ce o transforma intr-o oportunitate excelenta pentru investitori si dezvoltatori imobiliari interesati de un proiect imediat executabil. Detalii teren si proiect: Suprafata totala teren: 2700 mp Suprafata teren aferenta fiecarei unitati locative: aprox. 350 mp Suprafata construita la sol / unitate: 99 mp Parcelare flexibila: terenul se poate vinde si individual, in loturi de aprox. 700 mp (pentru fiecare duplex), fiecare cu cota parte din drumurile interioare Utilitati la parcela: apa, gaz, curent Acces: strada este inclusa in programul de asfaltare, ceea ce adauga valoare si confort pentru viitorii locatari Avantaje majore Proiect autorizat – constructia poate incepe imediat, fara intarzieri pentru obtinerea documentatiilor Flexibilitate la achizitie – se poate cumpara integral sau parcelat, in functie de planul de investitii Zona in plina expansiune – Chinteni este cautat de familiile tinere care vor locuinte moderne aproape de Cluj, intr-un mediu linistit Investitie sigura si profitabila – cererea ridicata pentru unitati locative in proximitatea Clujului garanteaza un randament atractiv 90.000 € / parcela (2 unitati locative) + TVA Oportunitate excelenta pentru dezvoltatori imobiliari sau investitori care cauta un proiect autorizat, cu toate actele pregatite pentru demararea constructiei intr-o zona cu potential ridicat. ID EXTERN: P11100
Citește mai mult Citește mai puțin
Electricitate Apă Gaz

Detalii teren

ID anunț: 1977315 Actualizat în: 02 Martie 2026
Suprafață teren: 2.700 mp
Tip teren: Construcții
Clasificare teren: Intravilan
Front stradal: 104 m

Istoric preț

Facilități

Utilități
Curent Apă Gaze
Amenajare străzi
Pietruite
Alte caracteristici
Oportunitate de investiție La șosea Acces auto

Puncte de interes

Mijloace transport
transport
M-Xamus V
Mijloace transport aprox. 1700 m
transport
M-Xamus
Mijloace transport aprox. 1700 m
transport
M-Xamus E
Mijloace transport aprox. 1707 m
transport
M-Chinteni
Mijloace transport aprox. 1949 m

Proprietăți similare

Teren Construcții intravilan de 5500 mp, în Chinteni
324.500 € + TVA
Județul Cluj, Chinteni
5.500 mp teren
Construcții
Teren Construcții intravilan de 5498 mp, în Chinteni
357.370 € + TVA
Județul Cluj, Chinteni
5.498 mp teren
Construcții
Teren Construcții intravilan de 3449 mp, în Chinteni
344.900 €
Județul Cluj, Chinteni
3.449 mp teren
Construcții
Teren Construcții intravilan de 1468 mp, în Făget
339.000 €
Cluj-Napoca, Făget
1.468 mp teren
Construcții
Teren Construcții intravilan de 877 mp, în Borhanci
364.500 €
Cluj-Napoca, Borhanci
877 mp teren
Construcții
Teren Construcții de 1906 mp, în Florești
378.000 €
Județul Cluj, Florești
1.906 mp teren
Construcții
Teren Construcții intravilan de 1000 mp, în Borhanci
365.000 €
Cluj-Napoca, Borhanci
1.000 mp teren
Construcții
Teren Construcții de 552 mp, în Mănăștur
385.000 €
Cluj-Napoca, Mănăștur
552 mp teren
Construcții
Teren Construcții intravilan de 402 mp, în Gheorgheni
350.000 €
Cluj-Napoca, Gheorgheni
402 mp teren
Construcții

Abonează-te la newsletter să fii primul care primește cele mai noi recomandări de proprietăți și sfaturi de la experți.