Teren intravilan cu potențial excelent în Triaj, Narciselor, pentru dezvoltatori

453.000 €
100 € / mp

Triaj, Braşov

Suprafață teren:
4.530 mp
Tip teren:
Construcții

Descriere teren

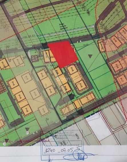
Teren intravilan cu potențial excelent în Triaj - Narciselor, pentru P+10 locuințe colective. Reper: Soho Residence Brașov. Suprafață: 4.530 mp. Deschidere generoasă: 65 metri la drum cu lățime de 9 metri. PUZ construire cartier locuințe colective Timiș - Triaj între str. Ciceu și str. Narciselor, aprobat. Certificat de urbanism valabil (emis in mai 2025) - pentru Construire bloc locuințe, organizare de șantier, împrejmuire și branșamente utilități. Destinație: Locuințe colective regim P+10. Indicatori urbanistici: POT 40%, CUT 3. Localizare - 45 40'33.2"N 25 38'18.2"E Alte detalii: se vinde cu cotă parte din drumul de acces. Preț: 100 euro mp. Comision intermediere cumpărător: 3%. Locație în dezvoltare activă, ideală pentru ansamblu rezidențial, investiție solidă cu documentație pregătită. Contactează-ne pentru mai multe informații și vizionare la fața locului! Telefon , .
Citește mai mult Citește mai puțin

Detalii teren

ID anunț: 197495 Actualizat în: 18 Martie 2026
Suprafață teren: 4.530 mp
Tip teren: Construcții
Clasificare teren: Intravilan
Front stradal: 65 m

Istoric preț

Puncte de interes

Mijloace transport
transport
Statia "Baza MTTC", linia 1,10,21,23barat
Mijloace transport aprox. 263 m
transport
Statia "RAT Brasov", linia 23barat,10,1,21
Mijloace transport aprox. 455 m
transport
Statie Autobuz nr 1,10,21,23barat, 45
Mijloace transport aprox. 489 m
transport
Statia Metabras, linia autobuz 45
Mijloace transport aprox. 546 m
Școală
education
Scoala Generala Nr. 31
Învățământ aprox. 448 m
education
Grupul Scolar Industrial de Transporturi Cai Ferate
Învățământ aprox. 494 m
education
Gradinita cu program normal nr. 30 (fosta nr. 27)
Învățământ aprox. 521 m
education
Scoala numarul 17
Învățământ aprox. 1388 m
Recreere
shopping
Liliput
Supermarket/Mall aprox. 444 m
shopping
Profi
Supermarket/Mall aprox. 523 m
parks
Parc
Recreere aprox. 587 m
restaurants
Cantina CET
Restaurante aprox. 1375 m

Proprietăți similare

Teren Construcții intravilan de 4528 mp, în Triaj
452.800 €
Brașov, Triaj
4.528 mp teren
Construcții
Teren Construcții intravilan de 7348 mp, în Triaj
440.000 €
Brașov, Triaj
7.348 mp teren
Construcții
Teren Construcții intravilan de 14000 mp, în Bartolomeu
448.000 €
Brașov, Bartolomeu
14.000 mp teren
Construcții
Teren Construcții intravilan de 17000 mp, în Astra
425.000 €
Brașov, Astra
17.000 mp teren
Construcții
Teren Construcții intravilan de 16500 mp, în Bartolomeu
412.500 €
Brașov, Bartolomeu
16.500 mp teren
Construcții
Teren Construcții intravilan de 2550 mp, în Tractorul
459.000 €
Brașov, Tractorul
2.550 mp teren
Construcții
Teren Construcții intravilan de 8135 mp, în Stupini
480.000 €
Brașov, Stupini
8.135 mp teren
Construcții
Teren Construcții intravilan de 8122 mp, în Stupini
465.000 €
Brașov, Stupini
8.122 mp teren
Construcții
Teren Construcții intravilan de 1700 mp, în Tractorul
425.000 €
Brașov, Tractorul
1.700 mp teren
Construcții

Abonează-te la newsletter să fii primul care primește cele mai noi recomandări de proprietăți și sfaturi de la experți.