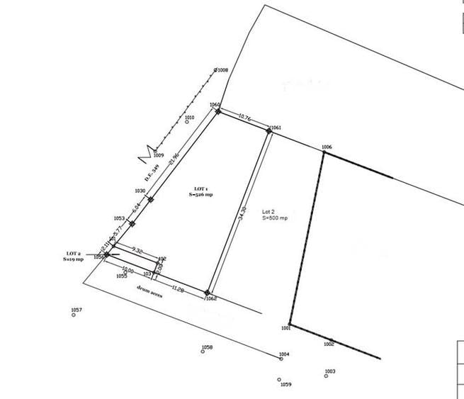
Teren de casa 526mp, utilitati pe teren, Bod , Brasov

28.000 €
53.23 € / mp

Bod, Judeţul Braşov

Suprafață teren:
526 mp
Tip teren:
Construcții

Descriere teren

Vista Real Estate va prezinta la vanzare in sistem de exclusivitate, o parcela de teren intr-o zona foarte buna din comuna Bod, Brasov. Avem in apropiere statie de RATBV, magazin comercial, primaria bod, carrefour market. Certificat de Urbanism - P+1+M . Caracteristici principale: Suprafață: 526 mp + drum Acces: drum privat de acces pana la terenuri Regim de construire: P + E+ M (parter + etaj + mansardă) ; POT - 30% ; CUT - 0.80% Utilitati: curent, canalizare, apa Potential: ideal pentru investitie sau casa Comision 2% pentru cumparator Pentru mai multe detalii, nu ezitati sa ne contactati! Vista Real Estate, formata dintr-o echipa de profesionisti in imobiliare, sunt gata sa te reprezinte indiferent de nevoia ta imobiliara: servicii de intermediere si consultanta, promovare, evaluarea bunurilor imobiliare, asistenta juridica, investitii imobiliare și administrarea proprietatilor. Noi credem ca tranzactia imobiliara este incheiata atunci cand persoanele care ne trec pragul recomanda, oricand, fara ezitare, Vista Real Estate.
Citește mai mult Citește mai puțin
Electricitate Apă Gaz

Detalii teren

ID anunț: 3906980 Actualizat în: 20 Martie 2026
Suprafață teren: 526 mp
Tip teren: Construcții
Clasificare teren: Intravilan
Front stradal: 28 m

Istoric preț

Facilități

Utilități
Apă Curent Gaze
Alte caracteristici
Oportunitate de investiție Acces auto

Puncte de interes

Școală
education
Scoala
Învățământ aprox. 478 m
education
Scoala Generala Bod
Învățământ aprox. 501 m
education
Scoala Generala Bod
Învățământ aprox. 776 m
Recreere
shopping
Agrostar
Supermarket/Mall aprox. 573 m
restaurants
La Francezu
Restaurante aprox. 744 m

Proprietăți similare

Teren Construcții intravilan de 935 mp, în Bod
26.500 €
Județul Brașov, Bod
935 mp teren
Construcții
Teren Construcții intravilan de 517 mp, în Bod
25.850 €
Județul Brașov, Bod
517 mp teren
Construcții
Teren Construcții intravilan de 480 mp, în Bod
28.000 €
Județul Brașov, Bod
480 mp teren
Construcții
Teren Construcții intravilan de 755 mp, în Bod
26.500 €
Județul Brașov, Bod
755 mp teren
Construcții
Teren Construcții intravilan de 700 mp, în Bartolomeu
26.000 €
Brașov, Bartolomeu
700 mp teren
Construcții
Teren Construcții intravilan de 1100 mp, în Zărnești
27.500 €
Județul Brașov, Zărnești
1.100 mp teren
Construcții
Teren Construcții intravilan de 2650 mp, în Rulmentul
26.500 €
Brașov, Rulmentul
2.650 mp teren
Construcții
Teren Construcții intravilan de 1370 mp, în Bran
27.400 €
Județul Brașov, Bran
1.370 mp teren
Construcții
Teren Construcții intravilan de 500 mp, în Sânpetru
27.500 €
Județul Brașov, Sânpetru
500 mp teren
Construcții

Abonează-te la newsletter să fii primul care primește cele mai noi recomandări de proprietăți și sfaturi de la experți.