Aeroportului, Teren comercial 2411 mp, Utilitati

255.000 € + TVA
105.77 € + TVA / mp

Narcisa, Bacău

Suprafață teren:
2.411 mp
Tip teren:
Construcții

Descriere teren

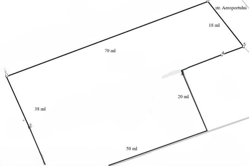
PROHOUSE propune spre vanzare, in exclusivitate, un teren intravilan, situat in Bacau pe strada Aeroportului. Pe teren se afla amplasate 2 constructii mobile cu destinatia birou 47mp si magazie 18mp. Biroul este mobilat si utilat recent si in functiune. Este format din 1 openspace (living si o bucatarie dotata), 2 birouri si 1 baie. Magazia dispune si de beci in suprafata de 40mp. Terenul poate fi folosit in scop comercial fiind pretabil pentru urmatoarele activitati: spalatorie auto, parc auto showroom, depozitare paleti, marfuri, etc. Platforma betonata reprezinta 70% din suprafata totala a terenului. Utilitati: curent (220V + 380V), apa, canalizare (fosa septica). Curtea este ingradita, iluminata si supravegheata video. Deschiderea terenului (sectorul de acces), la strada Aeroportului este de 18ml, iar sectorul de activitate si cladiri are deschiderea de 38ml dupa cumrezulta si din schita atasata. Pentru vizionare si alte detalii, nu ezitati sa ne contactati.
Citește mai mult Citește mai puțin
Electricitate Apă

Detalii teren

ID anunț: 127542 Actualizat în: 02 Februarie 2026
Suprafață teren: 2.411 mp
Tip teren: Construcții
Clasificare teren: Intravilan
Front stradal: 18 m

Istoric preț

Facilități

Utilități
Apă Curent
Amenajare străzi
Asfaltate
Alte caracteristici
Teren împrejmuit Acces auto

Puncte de interes

Mijloace transport
transport
Statia Narcisa
Mijloace transport aprox. 882 m
transport
Aeroportul International Bacau
Mijloace transport aprox. 1454 m
Școală
education
Colegiul Tehnic Henri Coanda
Învățământ aprox. 226 m
Recreere
parks
Teren sportiv
Recreere aprox. 339 m
shopping
Lidl
Supermarket/Mall aprox. 869 m
restaurants
PizzaLuca
Restaurante aprox. 876 m
parks
Teren sportiv
Recreere aprox. 1123 m

Proprietăți similare

Teren Construcții intravilan de 1800 mp, în Ștefan cel Mare
265.000 €
Bacău, Ștefan cel Mare
1.800 mp teren
Construcții
Teren Construcții intravilan de 5238 mp, în Exterior Sud
235.710 €
Bacău, Exterior Sud
5.238 mp teren
Construcții
Teren Construcții intravilan de 4700 mp, în Calea Bârladului
258.500 € + TVA
Bacău, Calea Bârladului
4.700 mp teren
Construcții
Teren Construcții intravilan de 6478 mp, în Central
259.900 €
Județul Bacău, Onești
6.478 mp teren
Construcții
Teren Construcții intravilan de 6600 mp, în Faraoani
265.000 €
Județul Bacău, Faraoani
6.600 mp teren
Construcții
Teren Construcții intravilan de 28000 mp, în Est
249.900 €
Județul Bacău, Onești
28.000 mp teren
Construcții
Teren Construcții intravilan de 5974 mp, în Mărgineni
267.000 €
Județul Bacău, Mărgineni
5.974 mp teren
Construcții

Abonează-te la newsletter să fii primul care primește cele mai noi recomandări de proprietăți și sfaturi de la experți.