2 săptămâni în urmă
11
- Agenție
Ciprian Zeres
69.000 €
Actualizat pe: 29 Oct 2025
-
Orlat
aprox. 1000 m
-
Parcare
aprox. 1503 m
Spatiu industrial compus din doua corpuri in Orlat, central - Sibiu
69.000 €
Orlat, Județul Sibiu
Descriere
Raportează anunț
Sesizează o problemă
Spatiu industrial compus din doua corpuri in Orlat, central - Sibiu
Spatiu industrial compus din doua corpuri in Orlat, central - Sibiu
Va propunem spre vanzare o proprietate industriala compusa din 2 corpuri situat in centrul comunei Orlat, jud. Sibiu
Proprietatea este compusa din:
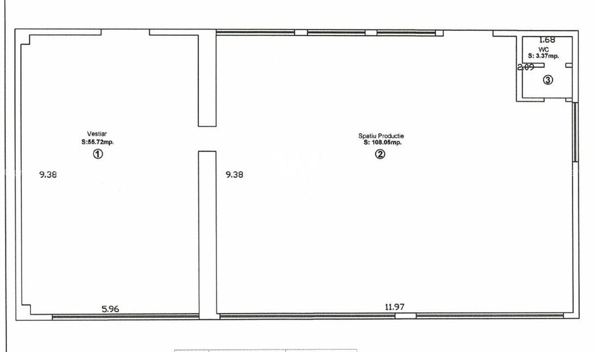
- Hala 1 cu suprafata de 185 mp
- Hala 2 cu suprafata de 168 mp
- Teren aferent 909 mp
- Platforma betonata
Proprietatea este imprejmuita cu gard si are bransamente la utilitati apa, canaalizare, energie electrica, gaze naturale.
Cladirile necesita lucrari de reparatii.
Nu exista acces TIR.
Pret: 69.000 euro.
Nr grupuri sanitare: 1
Suprafata construita: 353 mp
Nr incaperi: 2
Alte detalii zona - Amenajare strazi (Asfaltate); Mijloace de transport; Iluminat stradal
Utilitati - Utilitati generale (Curent,Apa,Canalizare,Gaz)
pretvanzare: 69000
monedavanzare: EUR
pretvanzaremp: 215.63
monedavanzaremp: EUR
Disponibilitate proprietate: Imediat
Citește mai mult
Citește mai puțin
ID anunț: 10079393
Actualizat în: 29 Octombrie 2025
Suprafață utilă:
320 mp
Suprafață utilă totală:
320 mp
An construcție:
1980
Proprietăți similare
Abonează-te la newsletter să fii primul care primește cele mai noi recomandări de proprietăți și sfaturi de la experți.
Căutări similare
- Spații comerciale de vânzare în Orlat
- Spații comerciale de vânzare în Sibiu
- Spații comerciale de vânzare în Șelimbăr
- Spații comerciale de vânzare în Cisnădie
- Spații comerciale de vânzare în Păltiniș
- Spații comerciale de vânzare în Mediaș
- Spații comerciale de vânzare în Veștem
- Spații comerciale de vânzare în Cristian
- Spații comerciale de vânzare în Ocna Sibiului
- Spații comerciale de vânzare în Cârțișoara
- Spații comerciale de vânzare în Tălmaciu
- Spații comerciale de vânzare în Rășinari