Hala industriala, 3200 mp, compartimentata, Jucu

1.850.000 €
578.13 € / mp

Jucu, Judeţul Cluj

Nr. niveluri:
1

Descriere spațiu comercial

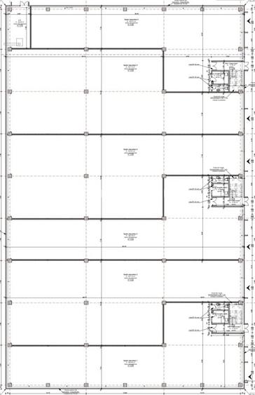
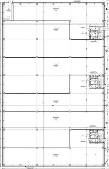
Va propunem spre vanzare o hala industriala moderna, nou construita, situata in zona industriala a localitatii Jucu, ideala pentru investitie, activitati logistice, productie sau depozitare. Hala dispune de o suprafata totala de 3200 mp cu inaltime de 5,55 m si este compartimentata astfel: - 6 module independente in zona de hala (2700 mp in total) fiecare cu rampa proprie - 500 mp spatiu destinat birourilor la etaj (zone administrative, vestiare, grupuri sanitare) Ca si utilitati dispune de curent trifazic, apa curenta si canalizare, sistem de incalzire. Hala este pozitionata intr-o zona industriala, acces facil cu tirul. Ideala pentru investitie intrucat se poate inchiria fiecare modul individual. Pentru mai multe informatii sau stabilirea unei vizionari va rugam sa ne contactati. ID Extern: P10299 Nr grupuri sanitare: 9 Suprafata construita: 3800 mp Nr incaperi: 12 Utilitati - Utilitati generale (Curent,Curent trifazic,Apa) pret vanzare: 1850000 moneda vanzare: EUR Disponibilitate proprietate: imediat
Citește mai mult Citește mai puțin
Electricitate Apă

Detalii spațiu comercial

ID anunț: 830881 Actualizat în: 09 Martie 2026
Suprafață utilă: 3.200 mp
Suprafață utilă totală: 3.200 mp
Regim înălțime: P+1E
Nr. niveluri: 1

Istoric preț

Facilități

Utilități
Curent Apă

Puncte de interes

Recreere
restaurants
Han Km 17
Restaurante aprox. 628 m
parks
Teren sportiv
Recreere aprox. 1741 m

Proprietăți similare

Spațiu industrial, de 3,600 mp, în Jucu
1.900.000 €
Județul Cluj, Jucu
3.600 mp utili
1E
2023
Spațiu industrial, de 2,251 mp, în Iris
1.800.000 €
Cluj-Napoca, Iris
2.251 mp utili
Spațiu industrial, de 2,166 mp, în Sud
2.000.000 €
Județul Cluj, Dej
2.166 mp utili
2E
2012
Hotel/Pensiune, de 735 mp, în Grigorescu
1.720.000 €
Cluj-Napoca, Grigorescu
735 mp utili
2E
Birou, de 1,948 mp, în Central
1.750.000 €
Județul Cluj, Dej
1.948 mp utili
2012
Birou, de 530 mp, în Central
1.800.000 €
Cluj-Napoca, Central
530 mp utili
2008
Spațiu comercial, de 3,733 mp, în Central
2.000.000 €
Cluj-Napoca, Central
3.733 mp utili
Spațiu comercial, de 575 mp, în Mărăști
1.979.000 €
Cluj-Napoca, Mărăști
575 mp utili
6E
2020
Birou, de 674.09997558594 mp, în Mănăștur
1.666.845 €
Cluj-Napoca, Mănăștur
674,1 mp utili
5E
2020

Abonează-te la newsletter să fii primul care primește cele mai noi recomandări de proprietăți și sfaturi de la experți.