Fabrica de lapte (LACTAG) situata in Costesti, Jud. Arges

1.000.000 €
355.11 € / mp

Costeşti, Judeţul Argeş

Nr. niveluri:
1

Descriere spațiu comercial

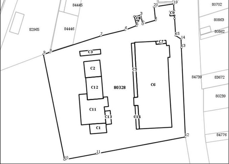
Spatiu industrial ce avea in trecut ca si profil de activitate procesarea si ambalarea lactatelor, situat in Costesti, Strada Progresului, nr. 24, Jud. Arges. Imobilul este compus din teren in suprafata de 9.987 m.p. pe care sunt edificate 12 constructii (detalii in rubrica fotografii), edificate in perioada 2000 - 2008 cu o suprafata la sol insumata de 2,816 m.p. Pentru detalii suplimentare, va rog sa ne contactati telefonic de Luni pana Vineri in intervalul orar 9 - 17. In afara acestui interval, va rog sa ne transmiteti un mesaj prin intermediul acestui anunt, fie prin intermediul unui mesaj text si va vom contacta ulterior.
Citește mai mult Citește mai puțin
Apă Acces TIR

Detalii spațiu comercial

ID anunț: 224725 Actualizat în: 09 Martie 2026
Suprafață utilă: 2.816 mp
Suprafață utilă totală: 2.816 mp
An construcție: 2000
Regim înălțime: P+1E
Nr. niveluri: 1

Istoric preț

Facilități

Acces
Acces TIR Cale rutieră
Utilități
Apă

Proprietăți similare

Spațiu industrial, de 2,820 mp, în Nord-Vest
1.100.000 €
Județul Argeș, Costești
2.820 mp utili
Hotel/Pensiune, de 1,626 mp, în Curtea de Argeș
1.000.000 €
Județul Argeș, Curtea de Argeș
1.626 mp utili
2E
1846
Birou, de 398.79998779297 mp, în Ultracentral
999.000 €
Pitești, Ultracentral
398,8 mp utili
4E
2007
Spațiu comercial, de 900 mp, în Banat
980.000 €
Pitești, Banat
900 mp utili
3E
Spațiu industrial, de 1,200 mp, în Exterior Nord
990.000 €
Pitești, Exterior Nord
1.200 mp utili
3.000 mp teren
Spațiu comercial, de 1,166 mp, în Ștefănești
990.000 €
Județul Argeș, Ștefănești
1.166 mp utili
2E
Spațiu comercial, de 214 mp, în Bradu
900.000 €
Județul Argeș, Bradu
214 mp utili
4.933 mp teren
Proprietate specială, de 1,080 mp, în Războieni
970.000 €
Pitești, Războieni
1.080 mp utili
Proprietate specială, de 900 mp, în Central
990.000 €
Județul Argeș, Câmpulung Muscel
900 mp utili
1912

Abonează-te la newsletter să fii primul care primește cele mai noi recomandări de proprietăți și sfaturi de la experți.