1 săptămână în urmă
7
- Proprietar
- Comision 0%
Bogdan
158.000 €
Actualizat pe: 17 Nov 2025
-
Parcare
aprox. 1516 m
-
Parc
aprox. 795 m -
Parc
aprox. 809 m -
Teren sportiv
aprox. 1294 m -
Parc
aprox. 1482 m
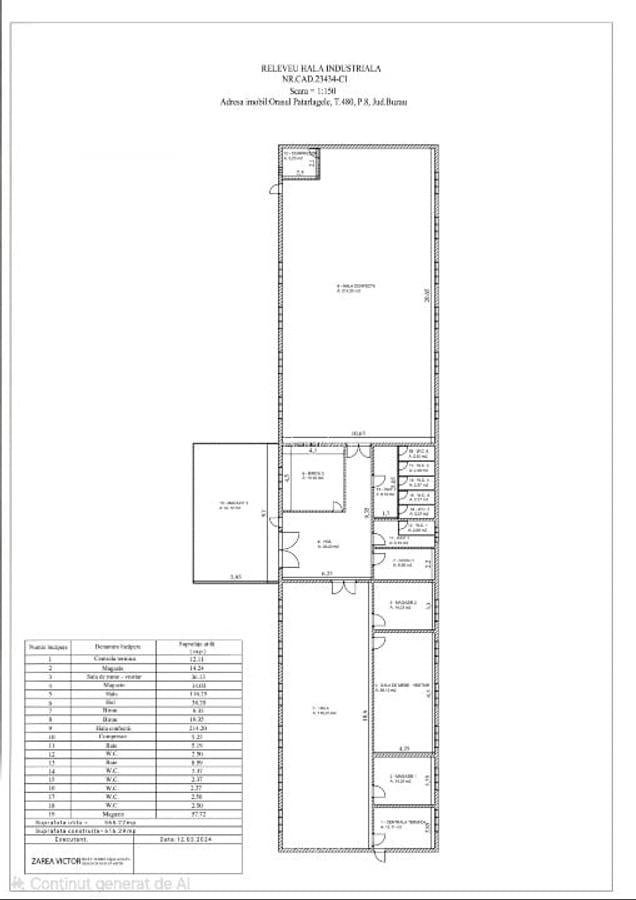
Hala industriala productie
158.000 €
Pătârlagele, Județul Buzău
Descriere
Raportează anunț
Sesizează o problemă
Hala industriala productie
Hala industriala productie
Se oferă spre vânzare hală industrială complet funcțională, pregătită pentru activități de confecții – croitorie, situată în orașul Pătârlagele.
Proprietatea are o suprafață utilă de 565 mp și este amplasată pe un teren intravilan concesionat de 2.100 mp.
Hala este compartimentată eficient și cuprinde:
Două săli de lucru dotate cu camere pentru compresoare,
Două birouri,
Grupuri sanitare și vestiare pentru personal.
Clădirea este dotată cu sistem de supraveghere video 24/7 și în prezent generează venituri din chirii, fiind o investiție ideală pentru cei care doresc o proprietate cu randament imediat.
Citește mai mult
Citește mai puțin
ID anunț: 10621172
Actualizat în: 17 Noiembrie 2025
Suprafață utilă:
565 mp
Suprafață utilă totală:
565 mp
Proprietăți similare
Abonează-te la newsletter să fii primul care primește cele mai noi recomandări de proprietăți și sfaturi de la experți.