Oportunitate: Hală de producție și depozitare cu birouri în Arad

3.500.000 €
858.90 € / mp

Micălaca, Arad

Descriere spațiu comercial

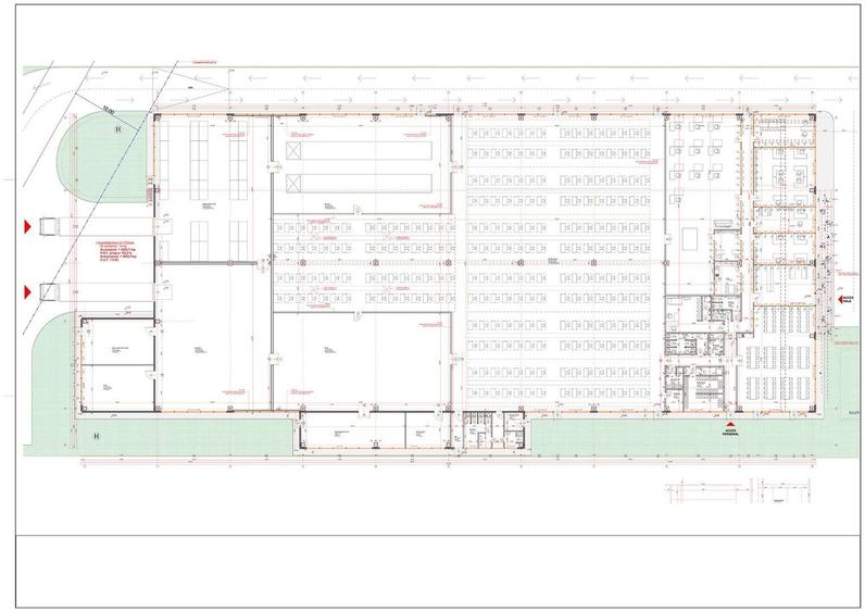
Avem plăcerea să vă oferim în exclusivitate o hală de producție și depozitare cu birouri în Municipiul Arad, în zona comercial-industrială Micălaca Sud. Caracteristici: Teren: 7.176 mp Construcție: 4.075 mp Dock-uri încărcare TIR: 2 buc An construcție: 2013 Dotări: Bazin PSI și Autorizație ISU Panouri Fotofoltaice putere 350 MWh Suflante aer cald și chillere. Utilități prezente: energie electrică, gaze naturale, apă și canalizare. Vecini: CEFIN Trucks, Modelleisenbahn, Dedeman, Altex, CitOne, HighPlast Detalii constructive: Stâlpi de susținere din beton armat, închideri perimetrale din plăci pefabricate din BA, tâmplărie din aluminiu. Localizare și dotările fac imobilul ideal pentru o gamă largă de activități comerciale, de producție și de depozitare. Profitați de o soluție rapidă și la cheie pentru afacerea dumneavoastră. Pentru vizionare și detalii, vă rog să mă apelați la numărul: Florin Moș
Citește mai mult Citește mai puțin
Electricitate Apă Gaz

Detalii spațiu comercial

ID anunț: 191040 Actualizat în: 26 Februarie 2026
Suprafață utilă: 4.075 mp
Suprafață utilă totală: 4.075 mp
Etaj: Parter
An construcție: 2013
Suprafață teren: 7.176 mp

Istoric preț

Facilități

Utilități
Curent Apă Canalizare Gaze

Puncte de interes

Mijloace transport
transport
Renasterii
Mijloace transport aprox. 731 m
transport
Renasterii
Mijloace transport aprox. 737 m
transport
Gradinita
Mijloace transport aprox. 750 m
transport
Renasterii
Mijloace transport aprox. 842 m
Școală
education
Gradinita Casuta Piticilor
Învățământ aprox. 802 m
education
Scoala Gimnaziala nr. 12 Regina Maria
Învățământ aprox. 1512 m
education
Universitatea de Vest Aurel Vlaicu
Învățământ aprox. 1939 m
Recreere
restaurants
Petrom
Restaurante aprox. 327 m
shopping
Selgros
Supermarket/Mall aprox. 510 m
shopping
real
Supermarket/Mall aprox. 967 m
parks
Parcul 23 August
Recreere aprox. 1162 m

Proprietăți similare

Spațiu comercial, de 4,602 mp, în Ultracentral
3.800.000 €
Arad, Ultracentral
4.602 mp utili
Spațiu industrial, de 4,500 mp, în Vest
3.850.000 €
Arad, Vest
4.500 mp utili
1E
2008
Spațiu comercial, de 4,602 mp, în Ultracentral
3.800.000 €
Arad, Ultracentral
4.602 mp utili
3E
1983

Abonează-te la newsletter să fii primul care primește cele mai noi recomandări de proprietăți și sfaturi de la experți.