Inchiriere depozit in Expo Market Doraly

4.681 € / lună

Centura Est, Bucureşti

Descriere spațiu comercial

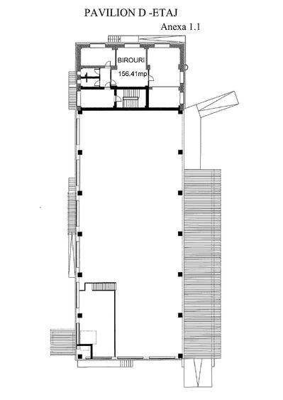
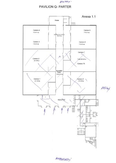
Depozite de inchiriat in Afumati Spațiu disponibil pentru închiriere în incinta Expo Market Doraly, localizat în comuna Afumați, județul Ilfov, pe DN2, la doar 1 km de Șoseaua de Centură a Bucureștiului. Amplasamentul se află pe partea stângă a sensului de mers București – Urziceni, cu acces direct din drumul național DN2, într-o zonă cu profil preponderent comercial. Spațiul este adecvat pentru activități de depozitare sau comerciale. Localizare: 1 km de Șoseaua de Centură 4,5 km de Autostrada A3 7 km de DN3 13,5 km de DN1 Suprafețe disponibile – prezentare generală Proprietatea oferă spre utilizare spații comerciale, depozitare și birouri, dispuse în mai multe pavilioane, cu funcționalități diverse și acces facil. Pavilion Q – Parter (spațiu frigorific) Suprafață totală: aprox. 1.332 mp Spațiu frigorific compartimentat, pretabil pentru depozitare la temperatură controlată, logistică alimentară sau activități conexe. Pavilion E1 – Parter Suprafață totală: aprox. 718 mp Spațiu open-space, cu zone auxiliare, potrivit pentru activități comerciale, logistice sau producție ușoară. Pavilion D Parter (depozit + showroom): aprox. 678 mp Etaj (birouri): 156,41 mp Subsol (depozitare și spații tehnice): aprox. 829 mp Suprafață totală disponibilă Aprox. 3,713 mp Dotări tehnice: rampe de andocare Uși sectionale drive-in (4 m lățime × 3 m înălțime) Înălțime interioară maximă: 9 m Pardoseală acoperită cu vopsea epoxidică Climatizare prin centrală proprie Conectivitate: prize pentru telefonie și internet
Citește mai mult Citește mai puțin
ID anunț: 3480875 Actualizat în: 12 Februarie 2026

Istoric preț

Puncte de interes

Școală
education
Liceul Tehnologic " Nicolae Balcescu "- Voluntari
Învățământ aprox. 1667 m
education
Scoala Generala cu cls. I-VIII nr. 2- Voluntari
Învățământ aprox. 1726 m
education
Sala de sport apartinand Liceului Tehnologic(Economic) "Nicolae Balcescu"
Învățământ aprox. 1792 m
education
Gradinita nr. 1 Voluntari
Învățământ aprox. 1826 m
Recreere
restaurants
Restaurant La Nuci ®
Restaurante aprox. 424 m
shopping
METRO Voluntari
Supermarket/Mall aprox. 1684 m
parks
spatiu verde
Recreere aprox. 1754 m
parks
Park-Cartier Negro-Pontes (en)
Recreere aprox. 1787 m

Proprietăți similare

Spațiu comercial, de 227 mp, în Decebal
5.000 € / lună
București, Decebal
227 mp utili
7E
1990
Spațiu comercial, de 200 mp, în Alba Iulia
5.000 € / lună
București, Alba Iulia
200 mp utili
Spațiu comercial, de 150 mp, în Unirii
4.500 € / lună
București, Unirii
150 mp utili
Spațiu comercial, de 303 mp, în Unirii
4.545 € / lună
București, Unirii
303 mp utili
8E
Spațiu industrial, de 566.40002441406 mp, în Theodor Pallady
4.250 € / lună
București, Theodor Pallady
566,4 mp utili
500 mp teren
1E
Spațiu comercial, de 369 mp, în Unirii
4.428 € / lună
București, Unirii
369 mp utili
1E
1993
Spațiu comercial, de 200 mp, în Decebal
5.000 € / lună
București, Decebal
200 mp utili
Spațiu industrial, de 597 mp, în Theodor Pallady
4.250 € / lună
București, Theodor Pallady
597 mp utili
700 mp teren
2025
Spațiu comercial, de 300 mp, în P-ța Unirii
4.500 € / lună
București, P-ța Unirii
300 mp utili
10E
1974

Abonează-te la newsletter să fii primul care primește cele mai noi recomandări de proprietăți și sfaturi de la experți.