INCHIRIERE SPATII INDUSTRIALE PLOIESTI, ZONA BUCOV

1.100 € / lună
0.42 € / mp / lună

Est, Ploieşti

Descriere spațiu comercial

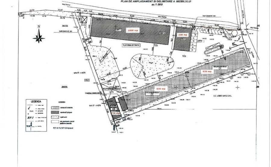
Spatii industriale de inchiriat in zona Bucov Inchiriere spatii industriale, amplasate in partea de est a orasului Ploiesti, pe strada Octavian Goga, in zona Bucov, cu acces din drumul national DN1B. Spatiile sunt localizate la 850 mp distanta fata de drumul national DN1B. Accesul catre autostrada A3 (curesti -Ploiesti), aflata la 18,5 km distanta, se realizeaza intermediul drumului national DN1A. Proprietatea are o suprafata totala de 2.604 mp si este alcatuita din 5 constructii individuale cu suprafete si specificatii distincte. Prima constructie este reprezentata de o hala cu spatii de productie sau depozitare si spatii de birouri, cu o suprafata totala de 630 mp. Constructia este realizata din cadre de beton cu umplutura de caramida, izolatie din polistiren de 10 cm si are o inaltime utila cuprinsa intre 4 si 7 m. Spatiile beneficiaza de sitem de incalzire prin pardoseala in zona de birouri si calorifere in restul spatiilo, grupuri sanitare, bucatarie personal / protocol si terasa amenajat. Cea de a doua constructie este o hala industriala cu suprafata totala de 630 mp si beneficiaza de centrala temica, instalatie de aer comprimat si o inaltime utila de 3,5 m. A treia constructie are o suprafata toala de 114 mp, este realizata pe structura metalica si are posibilitate de incalzire. A patra constructie este reprezentata de un cort pe structura metalica cu pereti si acoperis din poliplan ignifug, are pardoseala din beton si o suprafata totala de 1.000 mp. Cea de a cincea constructie este o hala industriala realizata pe structura metalica cu o suprafata toala de 230 mp. Toate spatiile beneficiaza de toate utilitatile necesare pentru desfasurarea oricarui tip de activitate.
Citește mai mult Citește mai puțin

Detalii spațiu comercial

ID anunț: 1063579 Actualizat în: 27 August 2025
Suprafață utilă: 2.604 mp
Suprafață utilă totală: 2.604 mp

Istoric preț

Puncte de interes

Școală
education
Scoala gimnaziala Constantin Stere
Învățământ aprox. 1097 m
Recreere
parks
Teren sportiv
Recreere aprox. 1038 m

Proprietăți similare

Spațiu comercial, de 240 mp, în Central
1.200 € / lună
Ploiești, Central
240 mp utili
1E
Spațiu comercial, de 200 mp, în B-dul București
1.000 € / lună
Ploiești, B-dul București
200 mp utili
200 mp teren
Spațiu comercial, de 121 mp, în Ultracentral
1.100 € / lună
Ploiești, Ultracentral
121 mp utili
3E
Spațiu comercial, de 250 mp, în Central
1.200 € / lună
Ploiești, Central
250 mp utili
Spațiu comercial, de 116 mp, în Cina
1.100 € / lună
Ploiești, Cina
116 mp utili
2E
Spațiu industrial, de 212 mp, în B-dul București
1.060 € / lună
Ploiești, B-dul București
212 mp utili
1980
Spațiu industrial, de 305 mp, în Nord - Spitalul Județean
1.200 € / lună
Ploiești, Nord - Spitalul Județean
305 mp utili
1970
Spațiu comercial, de 300 mp, în Transilvaniei
1.000 € / lună
Ploiești, Transilvaniei
300 mp utili
300 mp teren
3E
Spațiu comercial, de 7,000 mp, în Mărășești
1.000 € / lună
Ploiești, Mărășești
7.000 mp utili
6E

Abonează-te la newsletter să fii primul care primește cele mai noi recomandări de proprietăți și sfaturi de la experți.