Hala si birouri cu suprafta de 320m-uzina 2

1.600 € / lună
5 € / mp / lună

Uzina 2, Braşov

Descriere spațiu comercial

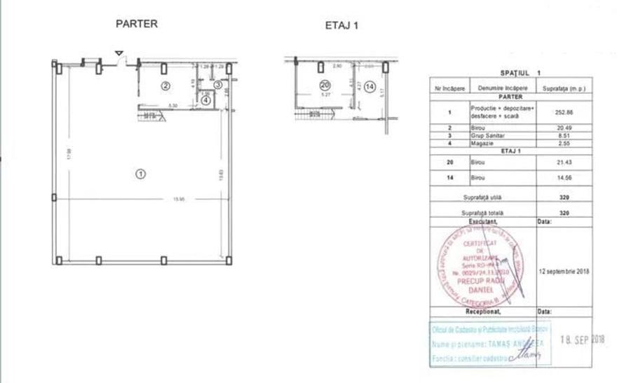
Agentia imobiliara Mi Casa va ofera la inchiriere hală industrială cu suprafața de 320mp, situată în Uzina 2, Brașov, cu acces facil către toate zonele orasului. Hala este compartimentata astfel;suprafata de 253mp hala pentru productie depozitare,31,5mp birouri si grupuri sociale situate la parter,36mp sunt birouri situate la etaj. Incalzirea se face pe partea de birouri cu centrala termica pe gaz iar pe zona de hala cu tub radiant. Toate utilitățile disponibile (apă, curent, canalizare) Ideală pentru depozitare, producție sau logistică Acces ușor pentru aprovizionare
Citește mai mult Citește mai puțin
Electricitate Apă Gaz

Detalii spațiu comercial

ID anunț: 3697362 Actualizat în: 25 Martie 2026
Suprafață utilă: 320 mp
Suprafață utilă totală: 320 mp
Etaj: Parter
An construcție: 1970

Istoric preț

Facilități

Utilități
Curent Apă Canalizare Gaze

Puncte de interes

Mijloace transport
transport
Poligrafie
Mijloace transport aprox. 306 m
transport
Statia Poligrafie, linia 45, 34
Mijloace transport aprox. 316 m
transport
Poligrafie
Mijloace transport aprox. 325 m
transport
Complexul Mare
Mijloace transport aprox. 529 m
Școală
education
Grupul Scolar Industrial Energetic
Învățământ aprox. 308 m
education
Scoala generala nr 7
Învățământ aprox. 441 m
education
Palatul Copiilor si Elevilor
Învățământ aprox. 457 m
education
Scoala Generala 10
Învățământ aprox. 605 m
Recreere
parks
Teren basket
Recreere aprox. 156 m
shopping
Store
Supermarket/Mall aprox. 460 m
restaurants
Bar/Beer Garden
Restaurante aprox. 500 m
shopping
Lidl
Supermarket/Mall aprox. 697 m

Proprietăți similare

Spațiu comercial, de 278 mp, în Griviței
1.529 € / lună
Brașov, Griviței
278 mp utili
1E
2000
Spațiu industrial, de 360 mp, în Stupini
1.505 € / lună
Brașov, Stupini
360 mp utili
1E
2010
Spațiu comercial, de 85 mp, în Bartolomeu
1.743 € / lună
Brașov, Bartolomeu
85 mp utili
2000
Spațiu comercial, de 64 mp, în Tractorul
1.700 € / lună
Brașov, Tractorul
64 mp utili
3E
2024
Spațiu industrial, de 4,000 mp, în Tractorul
1.500 € / lună
Brașov, Tractorul
4.000 mp utili
Spațiu industrial, de 500 mp, în Astra
1.750 € / lună
Brașov, Astra
500 mp utili
500 mp teren
1984
Spațiu comercial, de 390 mp, în Bartolomeu
1.755 € / lună
Brașov, Bartolomeu
390 mp utili
Spațiu comercial, de 90 mp, în Bartolomeu
1.450 € / lună
Brașov, Bartolomeu
90 mp utili
2003
Spațiu industrial, de 380 mp, în Stupini
1.710 € / lună
Brașov, Stupini
380 mp utili
3.000 mp teren

Abonează-te la newsletter să fii primul care primește cele mai noi recomandări de proprietăți și sfaturi de la experți.