Spatiu Comercial 200 mp –Complex PREMIUM | front stradal Bd. Pipera

530.000 €
2,650.00 € / mp

Voluntari, Judeţul Ilfov

Suprafață utilă totală:
200 mp
Nr. niveluri:
5

Descriere spațiu comercial

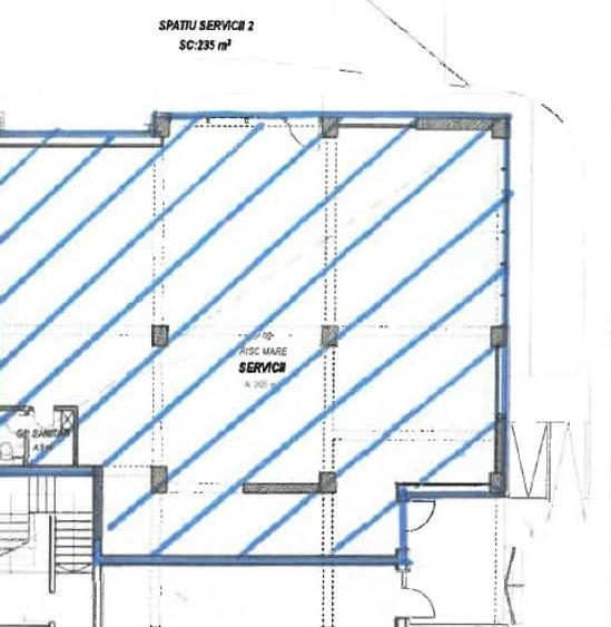
Va propunem spre achizitie un spatiu comercial premium, situat la parterul unui complex nou, cu vizibilitate directa la Bd. Pipera (zona Iancu Nicolae). Locatia beneficiaza de trafic intens si expunere maxima. Specificatii principale: - Suprafata: ~200 mp, configuratie open space (compartimentare flexibila). - Acces: 2 intrari independente. - Utilitati: Conectat la toate utilitatile (apa, canalizare, curent, gaz). - Stadiu: Cladire noua, predare estimata primavara-vara 2026. Avantaje si utilizare: - Pretabil: Clinica, showroom, magazin, salon, after-school sau bistro. - Zona: Bazin larg de clienti din ansamblurile rezidentiale de lux adiacente. - Parcare: Locuri disponibile in cadrul complexului. O investitie strategica intr-un hub comercial in plina dezvoltare, cu acces rapid catre DN1 si Baneasa. Comision cumparator: Standard. Suna acum pentru detalii si vizionare. Pentru mai multe detalii sau pentru a-ti prezenta spatiu te asteptam sa ne contactezi. Nr grupuri sanitare: 1 Suprafata construita: 235 mp Nr incaperi: 1 Utilitati - Sistem incalzire (Incalzire pardoseala); Utilitati generale (Curent,Apa,Canalizare,Gaz,CATV) Finisaje - Izolatii termice (Exterior); Podele (Gresie,Parchet); Ferestre cu geam termopan (Aluminiu) Dotari - Contorizare (Apometre,Contor caldura); Dotari imobil (Spatii agrement) pret vanzare: 530000 moneda vanzare: EUR Disponibilitate proprietate: Iunie 2026
Citește mai mult Citește mai puțin

Detalii spațiu comercial

ID anunț: 3268238 Actualizat în: 23 Ianuarie 2026
Suprafață utilă: 200 mp
Suprafață utilă totală: 200 mp
Regim înălțime: P+5E

Istoric preț

Facilități

Contorizare
Apometre Contor căldură
Mobilat
Nemobilat
Facilități imobil
Spații agrement
Utilități
Curent Apă Canalizare Gaze
Podele
Parchet Gresie
Izolații termice
Exterior
Ferestre cu geam termopan
Aluminiu

Puncte de interes

Mijloace transport
transport
Jolie Ville Baneasa
Mijloace transport aprox. 1686 m
transport
Pipera Drumul Bisericii
Mijloace transport aprox. 1868 m
Școală
education
British School of Bucharest
Învățământ aprox. 251 m
education
Mark Twain
Învățământ aprox. 391 m
education
Scoala Discovery
Învățământ aprox. 401 m
education
Scoala Internationala Olga Gudynn
Învățământ aprox. 403 m
Recreere
restaurants
Doncafe Brasserie
Restaurante aprox. 427 m
shopping
Billa
Supermarket/Mall aprox. 639 m
shopping
Mega Image Pipera-Tunari
Supermarket/Mall aprox. 725 m
parks
Private Skatepark (en)
Recreere aprox. 1190 m

Proprietăți similare

Spațiu industrial, de 431 mp, în Clinceni
550.000 €
Județul Ilfov, Clinceni
431 mp utili
1E
Spațiu industrial, de 447 mp, în Rudeni
535.000 €
Județul Ilfov, Rudeni
447 mp utili
1E
2024
Spațiu comercial, de 474 mp, în Snagov
550.000 €
Județul Ilfov, Snagov
474 mp utili
Spațiu industrial, de 485 mp, în Chiajna
550.000 €
Județul Ilfov, Chiajna
485 mp utili
900 mp teren
Spațiu industrial, de 550 mp, în Domnești
550.000 €
Județul Ilfov, Domnești
550 mp utili
1E
2026
Spațiu comercial, de 517 mp, în Domnești
549.000 €
Județul Ilfov, Domnești
517 mp utili
1E
2025
Spațiu industrial, de 510 mp, în Central
535.000 €
Județul Ilfov, Chitila
510 mp utili
2024
Spațiu industrial, de 592 mp, în Domnești
550.000 €
Județul Ilfov, Domnești
592 mp utili
1E
2025
Spațiu industrial, de 585 mp, în Chiajna
535.000 €
Județul Ilfov, Chiajna
585 mp utili
1E
2024

Abonează-te la newsletter să fii primul care primește cele mai noi recomandări de proprietăți și sfaturi de la experți.