Vand cladire comerciala langa Piata Iosefin

450.000 €
500 € / mp

Iosefin, Timişoara

Suprafață utilă totală:
900 mp

Descriere spațiu comercial

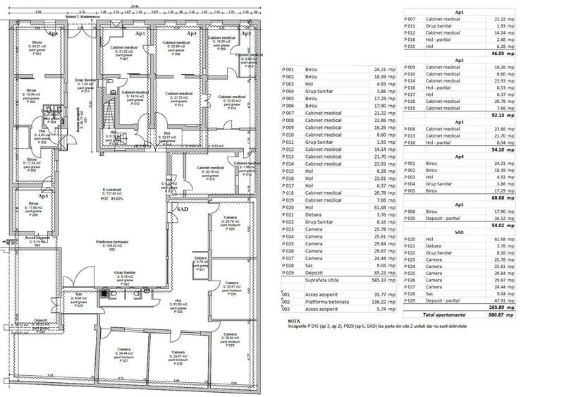
Vindem (suntem SRL) cladire cu scop comercial compusa din multiple CF-uri separate, conform releve-ului. Cladirea este pretabila pentru activitati comerciale, depozit sau productie - si are multiple imbunatatiri: acoperis nou, geamuri velux schimbate in mansarda, circuit automatizat de incalzire (2 centrale pe gaz), instalatie electrica imnbunatatita pentru consum mare, birouri si bucatarii amenajate. Se poate inchiria foarte usor, avand avantajul CF-urilor separate si spatii mici modulare, care se pot organiza dupa multe nevoi. Exista grup sanitar la parter, in mansarda si inca unul in zona de depozitare. In mansarda exista un spatiu open space care a fost folosit pentru cursuri de yoga. La parter sunt 2 intari din strada unde se pot face magazine cu vanzare spre public. Este localizata chiar pe malul Begai si in zona sunt multe alte activitati comerciale, se poate ajunge extrem de usor cu mijloace de transport. Este o cladire extrem de versatila, se poate folosi pentru multiple activitati - fie nevoi proprii, fie inchiriat catre terti.
Citește mai mult Citește mai puțin

Detalii spațiu comercial

ID anunț: 3922313 Actualizat în: 22 Martie 2026
Suprafață utilă: 900 mp
Suprafață utilă totală: 900 mp

Istoric preț

Puncte de interes

Mijloace transport
transport
Statie Crizantemelor T7, T2
Mijloace transport aprox. 210 m
transport
Mangalia
Mijloace transport aprox. 279 m
transport
Statie Mangalia T7, T2
Mijloace transport aprox. 305 m
transport
Statie Iuliu Maniu T2, T7
Mijloace transport aprox. 472 m
Școală
education
Gradinita nr. 31
Învățământ aprox. 462 m
education
Scoala Gimnaziala nr. 6
Învățământ aprox. 492 m
education
Scoala generala NR 6 ( clasele I - VIII )
Învățământ aprox. 505 m
education
Gradinita cu program normal nr. 10
Învățământ aprox. 549 m
Recreere
parks
Teren sportiv
Recreere aprox. 472 m
restaurants
Restaurant/Pizza Bistra
Restaurante aprox. 526 m
shopping
Lidl Budai Deleanu
Supermarket/Mall aprox. 692 m
shopping
Lidl
Supermarket/Mall aprox. 710 m

Proprietăți similare

Spațiu comercial, de 202 mp, în Iosefin
444.400 €
Timișoara, Iosefin
202 mp utili
1900
Spațiu comercial, de 314 mp, în Iosefin
490.000 €
Timișoara, Iosefin
314 mp utili
2010
Spațiu comercial, de 580 mp, în Lipovei
460.000 €
Timișoara, Lipovei
580 mp utili
1.170 mp teren
Spațiu comercial, de 209 mp, în Aradului
448.597 €
Timișoara, Aradului
209 mp utili
4E
2024
Spațiu comercial, de 634 mp, în Mehala
489.000 €
Timișoara, Mehala
634 mp utili
1970
Birou, de 223 mp, în Tipografilor
463.617 €
Timișoara, Tipografilor
223 mp utili
11E
2024
Spațiu comercial, de 245.36000061035 mp, în Torontalului
472.850 €
Timișoara, Torontalului
245,36 mp utili
5E
Spațiu industrial, în Torontalului
425.000 €
Timișoara, Torontalului
1E
Spațiu comercial, de 201.5 mp, în Complex Studențesc
443.300 €
Timișoara, Complex Studențesc
201,5 mp utili
8E
2023

Abonează-te la newsletter să fii primul care primește cele mai noi recomandări de proprietăți și sfaturi de la experți.