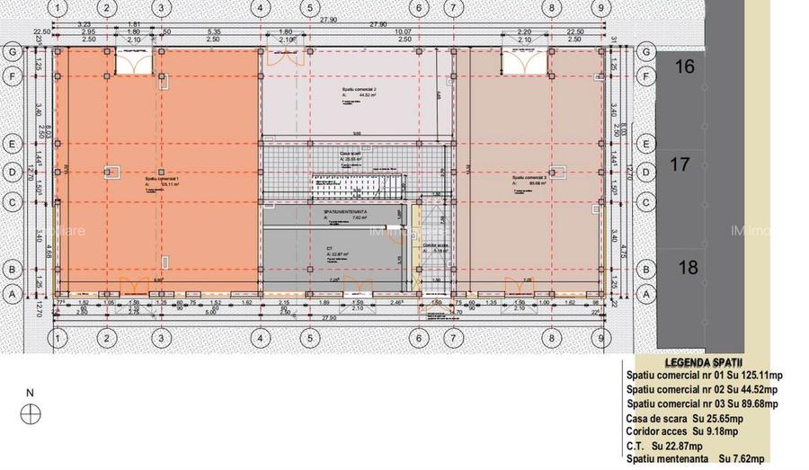
IMI Residence - Spatiu comercial la parter - 89.98 mp- cu vitrina

99.000 €
1,112.36 € / mp

Exterior Nord, Timişoara

Suprafață utilă totală:
89,98 mp
Nr. niveluri:
3
An construcție:
2025

Descriere

IMI Residence - Spatiu comercial la parter - 89.98 mp- cu vitrina

Variante de achizitie: - in faza de proiect/executie: 1100 E/mp + TVA - la finalizarea proiectului: 1400 E/ mp + TVA IMI Residence, dezvoltator cu peste 40 de locuinte vandute in cei 7 ani de experienta in domeniul imobiliar, ofera spre vanzare spatiu comercial amplasat intr-un cartier nou rezidential al comunei Sanandrei, localitate care isi propune sa valorifice potentialul si oportunitatile de dezvoltare, inclusiv crearea unui mediu de afaceri competitiv, destinat sa atraga investitii importante din tara si strainatate si care ofera serviciile necesare pentru a trai in armonie alaturi de cei dragi: gradinita cu program prelungit, scoala generala cu clase I-VIII, bazine de inot cu cursuri pentru copii, policlinica medicala, terenuri de sport, restaurante, spalatorii, mijloace de transport catre si dinspre Timisoara. Linia M41 de autobuz (Timișoara - Sanandrei - Carani) are 13 de opriri, prima stație la Vasile Pârvan și ultima stație la Darson: - Orarul autobuzului M41 de luni pana vineri: începe programul la 5:00 și se termină la 22:35. Frecventa: 1h:10, 15 curse pe zi - Orarul autobuzului M41 sambata si duminica: începe programul la 6:25 și se termină la 15:00. Frecventa: 8h:35, 2 curse pe zi Asa cum am obisnuit clientii, toate materialele folosite fac parte din clasa superioara, la fel dotarile: centralele termice Romstal, decorativa siliconata Kober, izolatia Austroterm de 10 cm, incalzirea in pardoseala, instalatiile sanitare Ideal Standard de la Romstal, geamurile tripane Rehau cu dubla deschidere si 6 camere de izolatie pe tamplarie reprezinta cateva notiuni care intaresc angajamentul nostru de a oferi imobile bine construite, bine finisate, de care sa va bucurati. Spatiul comercial propus spre vanzare este localizat la parterul unei cladiri de aprtamente in regim P+2E, unde parterul are destinatie exclusiv comerciala si este format din 3 spatii comerciale distincte, de marimi diferite si apartine zonei residentiale IMI Residence Variante de achizitie: - in faza de proiect/executie: 1100 E/mp + TVA - la finalizarea proiectului: 1400 E/ mp + TVA
Citește mai mult Citește mai puțin
ID anunț: 727739 Actualizat în: 11 Septembrie 2025
Suprafață utilă: 89,98 mp
Suprafață utilă totală: 89,98 mp
Regim înălțime: P+3E
An construcție: 2025

Istoric preț

Utilități

Utilități
Apă Climă Canalizare

Proprietăți similare

Spațiu comercial, de 52.200000762940 mp, în Lipovei
106.000 €
Timișoara, Lipovei
52,2 mp utili
6E
2022
Spațiu comercial, de 40 mp, în Central
95.000 €
Timișoara, Central
40 mp utili
1900
Birou, de 30 mp, în P-ța Unirii
100.000 €
Timișoara, P-ța Unirii
30 mp utili
1940
Spațiu comercial, de 61.799999237061 mp, în Torontalului
105.060 €
Timișoara, Torontalului
61,8 mp utili
4E
2025
Spațiu comercial, de 40 mp, în Torontalului
95.000 €
Timișoara, Torontalului
40 mp utili
Spațiu comercial, de 42 mp, în Șagului
93.500 €
Timișoara, Șagului
42 mp utili
1972
Spațiu comercial, de 47 mp, în Central
90.000 €
Timișoara, Central
47 mp utili
Spațiu comercial, de 153 mp, în Aradului
90.000 €
Timișoara, Aradului
153 mp utili
4E
Spațiu comercial, de 51 mp, în Buziașului
89.990 €
Timișoara, Buziașului
51 mp utili
4E

Abonează-te la newsletter să fii primul care primește cele mai noi recomandări de proprietăți și sfaturi de la experți.