Spatiu comercial de vanzare Complexul The Ring- 622

193.600 €
2,059.57 € / mp

Central, Timişoara

Suprafață utilă totală:
94 mp

Descriere spațiu comercial

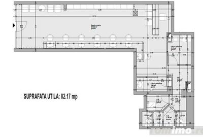
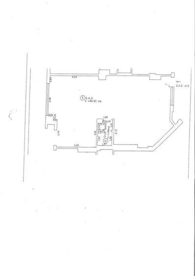
Se ofera spre vanzare spatiu comercial situat la parter, in Complexul The Ring, cu o suprafata utila de 94 mp. Spatiul beneficiaza de doua intrari si vitrine mari, oferind vizibilitate foarte buna pentru activitati comerciale sau de servicii.Proprietatea este compartimentata eficient si dispune de grup sanitar , aer conditionat si doua locuri de parcare subterane incluse.Spatiul este in prezent inchiriat, generand un venit lunar de 750 + TVA , fiind o optiune potrivita atat pentru investitie , cat si pentru utilizare proprie in viitor. Detalii principale:Suprafata: 94 mp Parter 2 intrari Vitrine mari Grup sanitar Aer conditionat 2 locuri de parcare subterane Inchiriat: 750 / luna + TVA Pret: 160.000 + TVA ID anunt: 622
Citește mai mult Citește mai puțin

Detalii spațiu comercial

ID anunț: 3742782 Actualizat în: 07 Martie 2026
Suprafață utilă: 94 mp
Suprafață utilă totală: 94 mp

Istoric preț

Puncte de interes

Mijloace transport
transport
statie E6 Statia Torontalului (Liege)
Mijloace transport aprox. 628 m
transport
Calea Torontalului
Mijloace transport aprox. 632 m
transport
Statie U.T.T. E1, T17
Mijloace transport aprox. 662 m
transport
U.T.T.
Mijloace transport aprox. 662 m
Școală
education
Biblioteca
Învățământ aprox. 631 m
education
Universitatea de Stiinte Agricole si Medicina Veterinara a Banatului
Învățământ aprox. 696 m
education
Facultatea de Agronomie
Învățământ aprox. 710 m
education
Universitatea de Stiinte Agricole si Medicina Veterinara a Banatului, Timisoara
Învățământ aprox. 718 m
Recreere
shopping
Mini-Market
Supermarket/Mall aprox. 130 m
restaurants
Iris
Restaurante aprox. 407 m
parks
Parc de joaca copii
Recreere aprox. 557 m
shopping
Penny market
Supermarket/Mall aprox. 718 m

Proprietăți similare

Spațiu comercial, de 1,000 mp, în Central
180.000 €
Timișoara, Central
1.000 mp utili
Spațiu comercial, de 88 mp, în Central
194.400 €
Timișoara, Central
88 mp utili
13E
Spațiu comercial, de 81 mp, în Tipografilor
200.000 €
Timișoara, Tipografilor
81 mp utili
Spațiu comercial, de 80 mp, în Sinaia
190.000 €
Timișoara, Sinaia
80 mp utili
Spațiu comercial, de 82 mp, în Gării
180.000 €
Timișoara, Gării
82 mp utili
Spațiu comercial, de 78 mp, în Blașcovici
210.000 €
Timișoara, Blașcovici
78 mp utili
1980
Birou, de 120 mp, în Aradului
195.000 €
Timișoara, Aradului
120 mp utili
4E
2023
Spațiu comercial, de 65 mp, în Ultracentral
195.000 €
Timișoara, Ultracentral
65 mp utili
1E
1880
Spațiu comercial, de 84.400001525879 mp, în Complex Studențesc
185.680 €
Timișoara, Complex Studențesc
84,4 mp utili
8E
2022

Abonează-te la newsletter să fii primul care primește cele mai noi recomandări de proprietăți și sfaturi de la experți.