Spatiu comercial, 255 mp si 600 mp teren, in zona Calea Bogdanestilor

160.000 €
627.45 € / mp

Bogdăneştilor, Timişoara

Suprafață utilă totală:
255 mp
Suprafață teren:
600 mp
An construcție:
1960

Descriere spațiu comercial

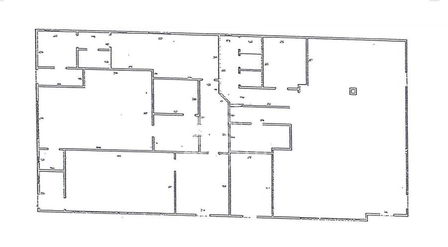
Agentia imobiliara APOSTU ESTATE va propune spre vanzare cladire comerciala de 255 metri patrati utili si 600 mp teren, in Zona Calea Bogdanestilor/Ronat Timisoara. Imobilul se desfasoara pe parter, are 3 intrari din strada si 3 cai de acces din curtea proprie. Spatiul este compartimentat in mai multe incaperi ( plan compartimentare atasat), dispune de asemenea de mai multe grupuri sanitare, curent trifazic, parcare in fata spatiului si curte generoasa betonata cu mici anexe. Este potrivit pentru mai multe tipuri de activitati comerciale: productie, magazin, clinica medicala, etc. Imobilul este foarte bine pozitionat si accesibil pentru transport marfuri, situat in apropiere de Pasajul Solventul si Gara de Nord. Pentru mai ulte detalii sau pentru a stabili o vizionare nu ezitati sa ne contactati! Cod intern: CP2931172
Citește mai mult Citește mai puțin

Detalii spațiu comercial

ID anunț: 3549443 Actualizat în: 18 Februarie 2026
Suprafață utilă: 255 mp
Suprafață utilă totală: 255 mp
An construcție: 1960

Istoric preț

Facilități

Utilități
Curent Apă Canalizare

Puncte de interes

Mijloace transport
transport
Statia Razboieni Tv5
Mijloace transport aprox. 231 m
transport
Statia Ronat Tv5
Mijloace transport aprox. 252 m
transport
Statia Muller Guttenbrunn Tv5
Mijloace transport aprox. 258 m
transport
Ronat
Mijloace transport aprox. 288 m
Școală
education
Colegiul Tehnic Dimitrie Leonida
Învățământ aprox. 70 m
education
Grup scolar Industrial Transporturi Cai ferate
Învățământ aprox. 114 m
education
scoala gen 11
Învățământ aprox. 274 m
education
Gradinita Program Prelungit Nr. 4
Învățământ aprox. 615 m
Recreere
shopping
Profi City
Supermarket/Mall aprox. 759 m
parks
Parc
Recreere aprox. 783 m
shopping
Profi City
Supermarket/Mall aprox. 1106 m
restaurants
Caffe Tim Nord
Restaurante aprox. 1136 m

Proprietăți similare

Spațiu comercial, de 144 mp, în Central
169.900 €
Timișoara, Central
144 mp utili
Spațiu comercial, de 79 mp, în
150.067 €
Timișoara, I. I. de la Brad
79 mp utili
1E
Spațiu comercial, de 53 mp, în Mehala
165.000 €
Timișoara, Mehala
53 mp utili
20 mp teren
3E
Spațiu comercial, de 82 mp, în Torontalului
150.900 €
Timișoara, Torontalului
82 mp utili
Spațiu comercial, de 121 mp, în Central
173.000 €
Timișoara, Central
121 mp utili
1920
Spațiu comercial, de 79 mp, în Lipovei
150.067 €
Timișoara, Lipovei
79 mp utili
2E
Spațiu comercial, de 48 mp, în Aradului
148.000 €
Timișoara, Aradului
48 mp utili
2024
Spațiu comercial, de 27 mp, în Central
164.983 €
Timișoara, Central
27 mp utili
9E
2026
Spațiu comercial, de 81 mp, în Medicină
149.900 €
Timișoara, Medicină
81 mp utili

Abonează-te la newsletter să fii primul care primește cele mai noi recomandări de proprietăți și sfaturi de la experți.