Spatiu Coemrcial/Cabinet Stomatologic de Vanzare, Zona 7 Noiembrie

420.000 €
3,157.89 € / mp

7 Noiembrie, Târgu Mureş

Suprafață utilă totală:
133 mp
An construcție:
2014

Descriere spațiu comercial

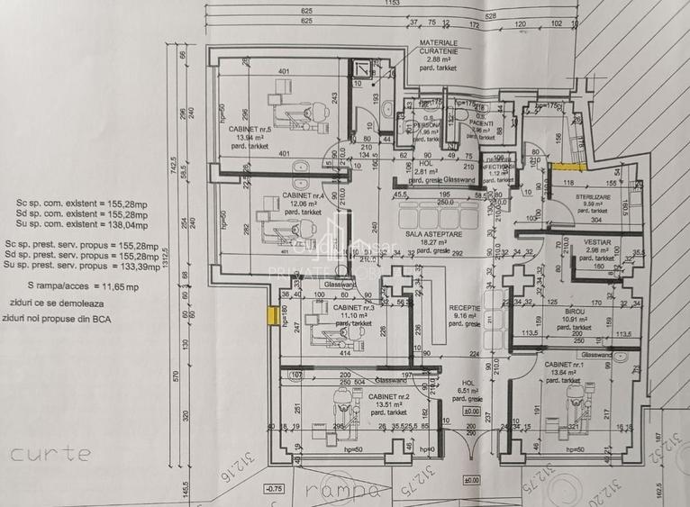
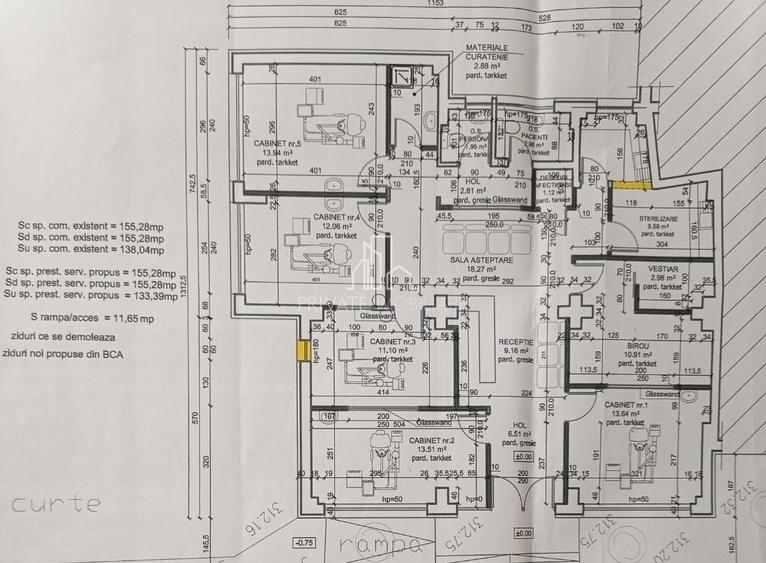
Va oferim spre vanzare un spatiu comercial, momentan functioneaza un cabinet stomatologic, recent amenajat( in anul 2021), toate dotarile si toata aparatura fiind de ultima generatie. Acesta are o suprafata utila de 133 Mp si desfasurata de 155 Mp, este situat la parterul unui bloc nou construit. Cabinetul este amenajat si dotata cu 3 scaune de stomatologie, 1 scaun (made in Germany) maca Sirona estetica faciala, birou, receptie, vestiar, sala de asteptare, toalete, etc. Cei interesati pot achizitiona doar spatiul gol la pretul de 420 000 euro. Cei interesati pot achizitiona spatiul si cu toate dotarile cabinetului stomatologic la pretul de 550 000 Euro. Se poate si inchiria cabinetul stomatologic la pretul de 12 euro/mp. Pentru clienții cumpărători, comisionul este 0%. Compania Private Imobiliare a ales cei mai buni și experimentați parteneri în realizarea tranzacțiilor: notar, avocat, evaluator imobiliar, eliberator Certificate Energetice, consultant credite imobiliare, astfel încât o dată cu cea mai bună alegere imobiliară vei primi la pachet și cele mai bune servicii necesare în tot acest proces. Dându-ne tot interesul în a fi de ajutor maxim clienților noștri... ne ajută să obținem rezultate mai bune și, ulterior, să ne bucurăm de recomandările clienților. Crezi că această proprietate nu corespunde în totalitate nevoilor tale? Dacă dorești să găsești PROPRIETATEA PERFECTĂ pentru tine și nu ai prea mult timp la dispoziție, CERE AJUTORUL AGENTULUI. Acesta iți va oferi alte SOLUȚII AVANTAJOASE. CONTACTEAZĂ-NE ACUM, nu am dat greș cu nici un client!
Citește mai mult Citește mai puțin

Detalii spațiu comercial

ID anunț: 2304625 Actualizat în: 19 Ianuarie 2026
Suprafață utilă: 133 mp
Suprafață utilă totală: 133 mp
An construcție: 2014

Istoric preț

Facilități

Utilități
Curent Apă Canalizare Gaze

Puncte de interes

Mijloace transport
transport
Gara Mica
Mijloace transport aprox. 317 m
transport
Gara Targu Mures Nord
Mijloace transport aprox. 325 m
transport
Piata Republicii
Mijloace transport aprox. 328 m
transport
Revolutiei
Mijloace transport aprox. 418 m
Școală
education
Liceul cu Program Sportiv Szasz Adalbert
Învățământ aprox. 168 m
education
Gradinita nr. 6
Învățământ aprox. 172 m
education
Universitatea Babes Bolyai
Învățământ aprox. 370 m
education
Liceul de Arta
Învățământ aprox. 463 m
Recreere
restaurants
Pizza Sole
Restaurante aprox. 41 m
parks
Piata Marasesti
Recreere aprox. 92 m
shopping
Lidl
Supermarket/Mall aprox. 408 m
shopping
Darina
Supermarket/Mall aprox. 437 m

Proprietăți similare

Spațiu industrial, de 1,000 mp, în Central
460.000 €
Târgu Mureș, Central
1.000 mp utili
700 mp teren
Spațiu comercial, de 203 mp, în Tudor
385.000 €
Târgu Mureș, Tudor
203 mp utili
Spațiu comercial, de 700 mp, în Libertății
430.000 €
Târgu Mureș, Libertății
700 mp utili
350 mp teren
2E
Spațiu comercial, de 203 mp, în Tudor
385.000 €
Târgu Mureș, Tudor
203 mp utili
1950
Birou, de 125.5 mp, în Semicentral
395.000 €
Târgu Mureș, Semicentral
125,5 mp utili
1995
Spațiu industrial, de 900 mp, în Libertății
390.000 €
Târgu Mureș, Libertății
900 mp utili
Spațiu comercial, de 400 mp, în Andreneasa
400.000 €
Județul Mureș, Andreneasa
400 mp utili
1E
2007
Spațiu comercial, de 500 mp, în Central
460.000 €
Județul Mureș, Sighișoara
500 mp utili
1.878 mp teren
1E
Spațiu comercial, de 1,200 mp, în Central
399.000 €
Județul Mureș, Reghin
1.200 mp utili

Abonează-te la newsletter să fii primul care primește cele mai noi recomandări de proprietăți și sfaturi de la experți.