
Mai mult de un an
5
- Proprietar
- Comision 0%
Cladire de vanzare
98.000 €
Central, Târgu Jiu
Descriere
Raportează anunț
Sesizează o problemă
Cladire de vanzare
Cladire de vanzare
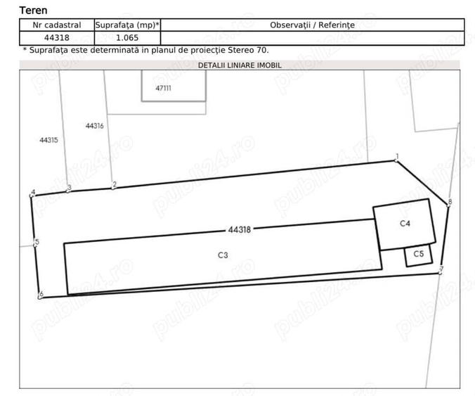
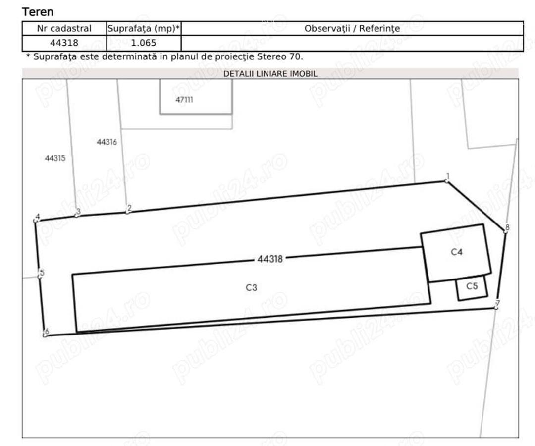
Cladirea are o suprafata de 390 mp si este amplasata pe un teren cu o suprafata de 1065 mp. Necesita renovare. Toate actele la zi. Mai multe detalii telefonic. ID anun?
Citește mai mult
Citește mai puțin
ID anunț: 69500
Actualizat în: 15 Octombrie 2025
Suprafață utilă:
390 mp
Suprafață utilă totală:
390 mp
Istoric preț
Abonează-te la newsletter să fii primul care primește cele mai noi recomandări de proprietăți și sfaturi de la experți.
Căutări similare
- Spații comerciale de vânzare în Central
- Spații comerciale de vânzare în Târgu Jiu
- Spații comerciale de vânzare în Primăverii
- Spații comerciale de vânzare în 9 Mai
- Spații comerciale de vânzare în Debarcader
- Spații comerciale de vânzare în Victoria
- Spații comerciale de vânzare în Centura
- Spații comerciale de vânzare în Est
- Spații comerciale de vânzare în Ultracentral
- Spații comerciale de vânzare în Vest