Mai mult de un an
18
- Agenție
BLITZ Romania
580.000 €
Actualizat pe: 14 Oct 2025
-
Parc Centru
aprox. 403 m
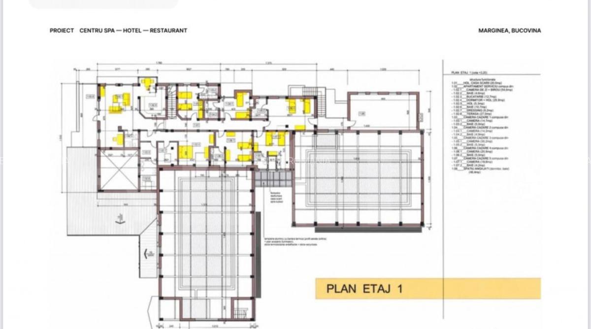
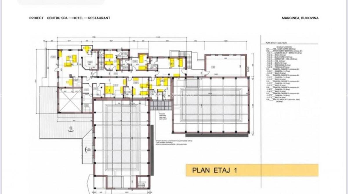
Hotel ,Centru SPA ,Constructie la rosu-zona Marginea
580.000 €
Central, Suceava
Descriere
Raportează anunț
Sesizează o problemă
Hotel ,Centru SPA ,Constructie la rosu-zona Marginea
Hotel ,Centru SPA ,Constructie la rosu-zona Marginea
Blitz va propune spre vanzare o cladire la rosu avand un proiect cu destinatie Centru SPA, Hotel si Restaurant .Cladirea este situata la drumul principal, zona Marginea. Aceasta cladire este construita pe trei nivele ,pe o suprafata de 2480 mp ,compartimentata astfel-subsol, utilat cu doua intrari si camera tehnica. Parter-receptie ,restaurant ,baie de serviciu, dusuri, zona pentru depozitare, vestiare, toaleta ,terasa, zona masaj, sauna ,piscina apa dulce, piscina apa sarata, jacuzzi, terasa exterioara ,camera de serviciu. Etaj 1-6 camere cu baie ,hol, penthouse luxos cu vedere spre padure. La constructia cladirii a fost folosita caramida si tabla de cea mai inalta calitate. Cladirea beneficiaza de un teren cu o suprafata de 4400 mp ,pe care se poate construi o zona de parcare, piscina exterioara ,loc de joaca pentru copii, etc .Zona de Spa are acoperisul din lemn stratificat executat la comanda. Pentru mai multe detalii ,asteptam sa ne contactati! Va asteptam la vizionare!!! Cod oferta / ID BLITZ: P102447 Id intern: P102447 Stadiu constructie: Finalizat Numar incaperi: 7 Publicat prin HomeZZ.ro, vezi anuntul complet aici.
Citește mai mult
Citește mai puțin
ID anunț: 870425
Actualizat în: 23 Octombrie 2025
Suprafață utilă:
2.000 mp
Suprafață utilă totală:
2.000 mp
Istoric preț
Proprietăți similare
Abonează-te la newsletter să fii primul care primește cele mai noi recomandări de proprietăți și sfaturi de la experți.
Căutări similare
- Spații comerciale de vânzare în Central
- Spații comerciale de vânzare în Suceava
- Spații comerciale de vânzare în Burdujeni
- Spații comerciale de vânzare în Exterior Vest
- Spații comerciale de vânzare în George Enescu
- Spații comerciale de vânzare în Obcini
- Spații comerciale de vânzare în Exterior Nord
- Spații comerciale de vânzare în Ițcani
- Spații comerciale de vânzare în Nord-Est
- Spații comerciale de vânzare în Periferie
- Spații comerciale de vânzare în Sud-Est
- Spații comerciale de vânzare în Universității