Exclusivitate! Hotel Restaurant 1700 mp utili, 8200 mp teren, langa Tu

1.400.000 €
1,516.79 € / mp

Stejeriş, Judeţul Cluj

Suprafață utilă totală:
923 mp
Nr. niveluri:
1

Descriere spațiu comercial

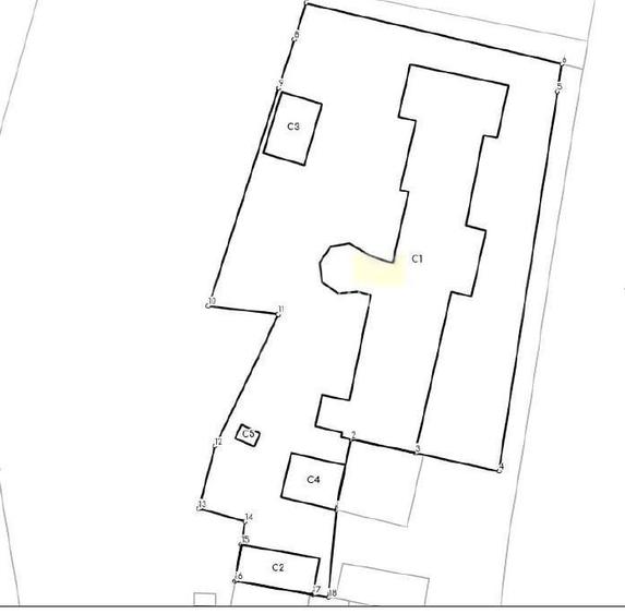
Blitz propune, in exclusivitate, un Hotel-Restaurant la 10 km de Turda si 7 km de autostrada A3 Cluj-Targu Mures, situat pe Drumul National, Turda - Alba Iulia. Proprietatea este compusa din mai multe corpuri, cu o suprafata utila de 1700 mp, pe un teren de 8200 mp cu front stradal de 99 ml. Corpul principal, se desfasoara pe o suprafata construita la sol de 654 mp; C 1 HOTEL RESTAURANT, cu regim de inaltime P+1+M, partial cu demisol, cu fundatie de beton, structura de rezistenta mixta din caramida beton si fier, sarpanta din lemn, invelitoare tigla compusa din: - la demisol : o incapere utilizata ca depozit - la parter : 3 incaperi birouri, una sala restaurant pentru 180 persoane, un bar, 2 saloane, o bucatarie, o camera frigorifica, o sala preparat carne, 2 depozite, 2 coridoare, 7 holuri, o garderoba, o spalatorie, o baie cu 6 corpuri sanitare, 3 casa scarii, o terasa inchisa si o terasa deschisa; - la etaj: un apartament compus din: 2 camere, o baie si un hol, alte 3 camere cu baie proprie, 11 camere simple, 1 incapere salon, 2 coridoare, 3 holuri, 6 corpuri sanitare, 3 casa scarii, 1 logie. Mansarda cu suprafata utila de 531 mp, compusa din: 14 camere, 14 bai, 14 holuri, sala protocol, oficiu, 3 casa scarii; Extindere etaj 1, suprafata utila de 117,17 mp. compusa din: 3 camere, hol, 2 bai si sala de protocol; Extindere parter: suprafata utila 58,12 mp, compusa din: camera, spalatorie, extindere sala restaurant( 14,19mp.) grup sanitar, restaurant, wc-uri femei si barbati. Corpurile secundare au ca destinatie: camera tehnica, magazie si anexe. Langa proprietate se afla un lac perfect pentru pescuit. Aceasta proprietate este excelenta pentru mai multe destinatii. Necesita renovare. Pentru mai multe informatii, va rugam sa ne contactati! Cod oferta / ID BLITZ: P158748
Citește mai mult Citește mai puțin

Detalii spațiu comercial

ID anunț: 3286896 Actualizat în: 20 Aprilie 2026
Suprafață utilă: 923 mp
Suprafață utilă totală: 923 mp
Regim înălțime: P+1E

Istoric preț

Proprietăți similare

Spațiu comercial, de 335.79998779297 mp, în P-ța Mihai Viteazul
1.343.200 €
Cluj-Napoca, P-ța Mihai Viteazul
335,8 mp utili
8E
2025
Spațiu industrial, de 2,000 mp, în Baciu
1.400.000 €
Județul Cluj, Baciu
2.000 mp utili
1E
Spațiu industrial, de 820 mp, în Iris
1.500.000 €
Cluj-Napoca, Iris
820 mp utili
3.300 mp teren
Spațiu comercial, de 282 mp, în Bună Ziua
1.300.000 €
Cluj-Napoca, Bună Ziua
282 mp utili
6E
2023
Birou, de 338.54998779297 mp, în Mărăști
1.490.000 €
Cluj-Napoca, Mărăști
338,55 mp utili
1E
2024
Spațiu comercial, de 923 mp, în Central
1.400.000 €
Județul Cluj, Turda
923 mp utili
1E
Birou, de 324.11999511719 mp, în Între Lacuri
1.390.000 €
Cluj-Napoca, Între Lacuri
324,12 mp utili
2025
Birou, de 600 mp, în Zorilor
1.295.000 €
Cluj-Napoca, Zorilor
600 mp utili
2008
Spațiu comercial, de 900 mp, în Zorilor
1.350.000 €
Cluj-Napoca, Zorilor
900 mp utili
8E

Abonează-te la newsletter să fii primul care primește cele mai noi recomandări de proprietăți și sfaturi de la experți.