Stefanesti Center A3 Centura Spatiu 900mp cladire comerci...

480.000 €
533.33 € / mp

Ştefăneştii de Jos, Judeţul Ilfov

Suprafață utilă totală:
900 mp

Descriere

Stefanesti Center A3 Centura Spatiu 900mp cladire comerci...

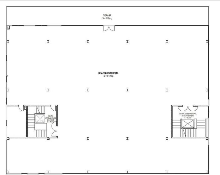
OFERTA CU 0% COMISION PENTRU CUMPARATOR!! Spatiu de 900 mp ( 800 mp interiori plus 100mp terasa ) cu multiple destinatii comerciale, birouri, sala de fitness,sala cursuri, loc de joaca, clinica, salon plus multe altele, situat in Stefanestii de Jos, intr-un centru comercial nou denumit STEFANESTI CENTER, la intersectia Sos Stefanesti cu strada Sinaia, cea care duce la A3 Bucuresti Ploiesti, la doi pasi de Centura si multiple depozite din parcul logistic ( Freshfull, Metro, Dechatlon, Mega Image, plus multe alte societati cu hale depozitare si productie ). Spatiul ocupa intreg etajul doi al imobilului compus din P+3 etaje. in prezent functioneaza la parter un magazin mare MEGA IMAGE, iar la etajul 1 un China Shop. Spatiul este open space, se poate compartimenta dupa preferinta si are doua cai de acces. Este contorizat separat, iar accesul se realizeaza pe doua zone de scari si doua lifturi. Suprafata totala: 950 m2 An finalizare constructie: 2024 Vitrina: 20.0 m Stadiu constructie: Finalizat Inaltime spatiu: 5.0 m Numar incaperi: 1 Numar Grupuri Sanitare: 2 Posibilitate parcare: Da Nr. locuri parcare: 4 Tip imobil: Mall Publicat prin , vezi anuntul complet aici.
Citește mai mult Citește mai puțin
ID anunț: 329301 Actualizat în: 01 Februarie 2026
Suprafață utilă: 900 mp
Suprafață utilă totală: 900 mp

Istoric preț

Proprietăți similare

Spațiu industrial, de 596 mp, în Central
499.000 €
Județul Ilfov, Chitila
596 mp utili
1.100 mp teren
2024
Spațiu industrial, de 540 mp, în Afumați
479.900 €
Județul Ilfov, Afumați
540 mp utili
Spațiu industrial, de 485 mp, în Domnești
450.000 €
Județul Ilfov, Domnești
485 mp utili
2025
Spațiu comercial, de 163 mp, în Central
499.000 €
Județul Ilfov, Bragadiru
163 mp utili
8E
1950
Spațiu industrial, de 300 mp, în Central
459.000 €
Județul Ilfov, Bragadiru
300 mp utili
Spațiu industrial, de 4,600 mp, în Central
465.000 €
Județul Ilfov, Buftea
4.600 mp utili
1980
Spațiu industrial, de 600 mp, în Sud
499.000 €
Județul Ilfov, Popești-Leordeni
600 mp utili
1E
2024
Spațiu comercial, de 290 mp, în Central
479.000 €
Județul Ilfov, Bragadiru
290 mp utili
1E
2022
Spațiu comercial, de 520 mp, în Chiajna
480.000 €
Județul Ilfov, Chiajna
520 mp utili

Abonează-te la newsletter să fii primul care primește cele mai noi recomandări de proprietăți și sfaturi de la experți.