Proiect cu Viziune - Ideal pentru Centru SPA - Lacul Morii

1.100.000 €
789.10 € / mp

Lacul Morii, Bucureşti

Suprafață utilă totală:
1.394,68 mp
Nr. niveluri:
3

Descriere spațiu comercial

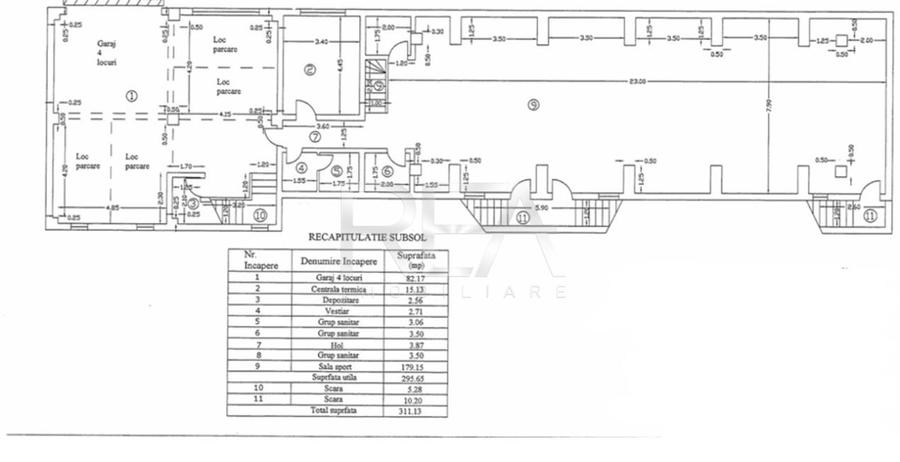
R.E.A. Imobiliare prezinta o proprietate spectaculoasa, unde arhitectura impunatoare se imbina perfect cu spatiul generos si pozitionarea privilegiata, chiar pe malul Lacului Morii. Cu o panorama larga asupra lacului si un potential de dezvoltare rar intalnit in Bucuresti, aceasta cladire reprezinta o oportunitate ideala pentru investitori cu viziune. Imobilul dispune de un regim de inaltime S+P+3E+M si o suprafata totala de 1.762,18 mp (din care 1.394,68 mp utili), amprenta la sol: 385 mp, Scd :1478, fiind amplasat pe un teren de 1.608 mp (1.408 mp teren principal + 200 mp parcela adiacenta). Configuratia actuala permite dezvoltarea unei game variate de proiecte — rezidentiale, comerciale sau recreative. Compartimentare generoasa si versatila: • 26 camere spatioase • 28 bai elegante • 10 balcoane cu vedere directa la lac • 4 bucatarii • 6 dressinguri • Piscina la parter • Garaj + 4 locuri de parcare Proprietatea este in stadiu “la rosu”, oferind libertatea totala de personalizare — ideala pentru un boutique hotel, centru wellness & spa, clinici moderne, birouri premium sau apartamente de lux cu deschidere la lac. *Unele imagini au titlu informativ si sunt prezentate cu scop ilustrativ, reprezentand o posibila varianta de amenajare. Localizare excelenta, conectata la principalele puncte din oras: • 8 minute pana la statiile STB • 10 minute pana la tramvaiul 41 • 20 de minute pana la metrou Petrache Poenaru Viziune. Spatiu. Priveliste. O proprietate rara, cu potential enorm si o pozitie imposibil de replicat in peisajul urban al Capitalei. *Informatiile tehnice au caracter orientativ si sunt furnizate de catre proprietar. Pentru detalii si programarea unei vizionari, va rugam sa ne contactati, mentionand codul P9567. Nr grupuri sanitare: 28 Suprafata construita: 1478 mp Nr garaje: 1 Nr incaperi: 26 Alte detalii zona - Amenajare strazi (Asfaltate); Mijloace de transport; Iluminat stradal Utilitati - Utilitati generale (Curent,Apa,Canalizare,Gaz) Finisaje - Izolatii termice (Exterior,Bloc izolat termic) Dotari - Dotari imobil (Curte) pret vanzare: 1100000 moneda vanzare: EUR Disponibilitate proprietate: imediat
Citește mai mult Citește mai puțin

Detalii spațiu comercial

ID anunț: 161702 Actualizat în: 16 Februarie 2026
Suprafață utilă: 1.394,68 mp
Suprafață utilă totală: 1.394,68 mp
Regim înălțime: P+3E

Istoric preț

Facilități

Utilități
Curent Apă Canalizare Gaze
Mobilat
Nemobilat
Facilități imobil
Curte
Amenajare străzi
Asfaltate Iluminat stradal Mijloace de transport în comun
Izolații termice
Exterior Bloc izolat termic

Puncte de interes

Mijloace transport
transport
Statia Dezrobirii, linia 178,106
Mijloace transport aprox. 529 m
transport
staţie RATB (106, 178, 406)
Mijloace transport aprox. 567 m
transport
Statia Teatrul Masca, linia 178, 106
Mijloace transport aprox. 852 m
transport
statia Roşia Montană (106, 178*) (en)
Mijloace transport aprox. 877 m
Școală
education
Colegiu Penticostal
Învățământ aprox. 610 m
education
Scoala Nr. 310 Regele Mihai I
Învățământ aprox. 783 m
education
Scoala generala nr.310
Învățământ aprox. 783 m
education
Scoala Generala Nr. 310
Învățământ aprox. 787 m
Recreere
shopping
Mega Image
Supermarket/Mall aprox. 478 m
restaurants
Weiss Beer Garden
Restaurante aprox. 502 m
shopping
Lidl
Supermarket/Mall aprox. 520 m
parks
Serele Institutului Politehnic Bucuresti
Recreere aprox. 1183 m

Proprietăți similare

Proprietate specială, de 1,650 mp, în Lacul Morii
1.100.000 €
București, Lacul Morii
1.650 mp utili
Proprietate specială, 831 mp în Giulești
1.000.000 €
București, Giulești
831 mp utili
1.089 mp teren
1980
Spațiu comercial, de 1,700 mp, în Virtuții
1.100.000 €
București, Virtuții
1.700 mp utili
3E
2009
Spațiu comercial, de 481 mp, în 1 Mai
1.150.000 €
București, 1 Mai
481 mp utili
1E
2004
Birou, de 750 mp, în Gara de Nord
1.099.936 €
București, Gara de Nord
750 mp utili
3E
Spațiu industrial, de 1,125 mp, în Theodor Pallady
1.125.000 €
București, Theodor Pallady
1.125 mp utili
1.300 mp teren
2024
Spațiu industrial, de 900 mp, în Pantelimon
1.080.000 €
București, Pantelimon
900 mp utili
1986
Spațiu comercial, de 223 mp, în Floreasca
1.000.000 €
București, Floreasca
223 mp utili
1953
Birou, de 310 mp, în Dacia
990.000 €
București, Dacia
310 mp utili
11E
2021

Abonează-te la newsletter să fii primul care primește cele mai noi recomandări de proprietăți și sfaturi de la experți.