Garsoniera Brancoveanu, Alunisului, parter, curte proprie, bloc 2015

69.500 €

Brâncoveanu, Bucureşti

Nr. camere:
1
Suprafață utilă:
24 mp
Etaj:
Parter / 3
An construcție:
2015
Nr. niveluri:
3

Descriere apartament

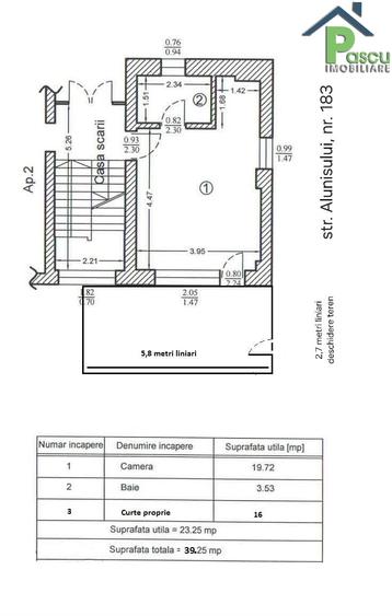
Exclusivitate PASCU Imobiliare! Blocul este situat stradal, pe strada Alunisului, cu acces din bulevardul Constantin Brancoveanu sau soseaua Giurgiului, este finalizat in anul 2015, are un regim de inaltime P+3, structura de rezistenta pe cadre si plansee din beton armat, compartimentare cu caramida Porotherm, izolatie termica cu polistiren expandat 10 cm, EPS 80. Garsoniera se afla la parter, are expunere stradala si curte proprie in suprafata de 16 metri patrati, cu acces direct din strada, facand-o ideala atat pentru locuit, dar mai ales pentru desfasurarea unei activitati comerciale sau spatii birouri. Garsoniera dispune de imbunatatiri premium: centrala termica proprie, incalzire prin pardoseala, aparat de aer conditionat LG ArtCool Gallery, sistem de alarma si supraveghere video. Bucataria este mobilata la comanda, dotata cu plita electrica si hota, frigider si multiple spatii de depozitare. Baia dispune de geam mare pentru aerisire, cabina de dus cu paravan din sticla, baterii Kludi, vas de WC si rezervor incastrat Grohe. Usa metalica la intrare anti efractie, gresie portelanata import Italia, usi interioare premium. Garsoniera este proaspat igienizata si zugravita, libera, disponibila imediat. Confort: 1 Tip imobil: Bloc de apartamente Comision cumparator: 2% Posibilitate parcare: Da Nr. locuri parcare: 1 Publicat prin , vezi anuntul complet aici.
Citește mai mult Citește mai puțin

Detalii apartament

ID anunț: 1833097 Actualizat în: 02 Martie 2026
Nr. camere: 1
Suprafață utilă: 24 mp
Suprafață utilă totală: 24 mp
Etaj: Parter / 3
An construcție: 2015
Regim înălțime: P+3E

Istoric preț

Puncte de interes

Mijloace transport
transport
Statia Piata Progresul, linia 323, N107,7,25
Mijloace transport aprox. 362 m
transport
Sos. Giurgiului
Mijloace transport aprox. 450 m
transport
Statia Toporasi, linia 323, N107,7,25
Mijloace transport aprox. 476 m
transport
Resita
Mijloace transport aprox. 640 m
Școală
education
Gradinita nr.262, "Alba ca zapada si piticii"
Învățământ aprox. 326 m
education
Gradinita Alba ca Zapada si Piticii
Învățământ aprox. 333 m
education
gradinita
Învățământ aprox. 368 m
education
EuroKid afterschool
Învățământ aprox. 372 m
Recreere
parks
Playground Livada
Recreere aprox. 191 m
shopping
Complex Agroalimentar Progresul
Supermarket/Mall aprox. 301 m
shopping
Mega Image Progresuluui
Supermarket/Mall aprox. 326 m
restaurants
Nicman
Restaurante aprox. 364 m

Proprietăți similare

Garsonieră decomandată în Brâncoveanu
75.000 €
București, Brâncoveanu
1 camere
33 mp
Etaj 3
Garsonieră decomandată în Brâncoveanu
75.000 €
București, Brâncoveanu
1 camere
33 mp
Etaj 3 / 4
Garsonieră în Brâncoveanu
67.999 €
București, Brâncoveanu
1 camere
32 mp
Parter / 10
Garsonieră decomandată în Brâncoveanu
71.000 €
București, Brâncoveanu
1 camere
34 mp
Parter
Garsonieră semidecomandată, mobilată în Brâncoveanu
66.000 €
București, Brâncoveanu
1 camere
38 mp
Etaj 6 / 8
Garsonieră semidecomandată, mobilată în Brâncoveanu
64.989 €
București, Brâncoveanu
1 camere
33 mp
Etaj 4
Garsonieră semidecomandată în Brâncoveanu
68.500 € + TVA
București, Brâncoveanu
1 camere
40 mp
Etaj 4 / 6
Garsonieră decomandată în Brâncoveanu
68.500 €
București, Brâncoveanu
1 camere
32 mp
Etaj 10
Garsonieră decomandată în Brâncoveanu
66.000 € + TVA
București, Brâncoveanu
1 camere
40,7 mp
Etaj 3

Abonează-te la newsletter să fii primul care primește cele mai noi recomandări de proprietăți și sfaturi de la experți.