Imobil Comercial/Hotel | 75 Camere | 55 Bai | Vanzare *Lacul Tei*

4.250.000 €
1,323.16 € / mp

Lacul Tei, Bucureşti

Suprafață utilă totală:
3.212 mp
Suprafață teren:
1.000 mp
Nr. niveluri:
4
An construcție:
1999

Descriere spațiu comercial

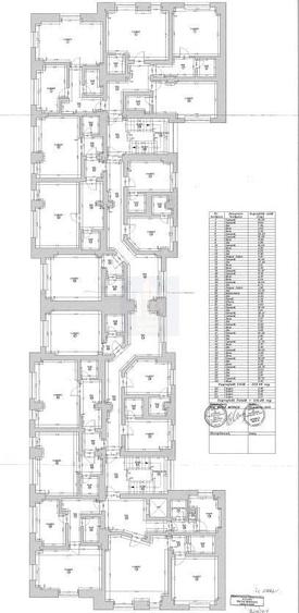
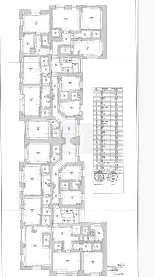
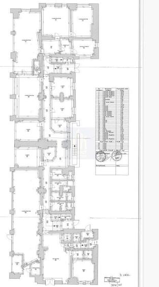
Va prezentam spre vanzare un imobil intreg, potrivit pentru hotel, spital privat, azil de batrani sau hotel, pozitionat in zona Lacul Tei, pe o strada linistita si cu trafic auto moderat. Imobilul este construit in anul 1998, are o suprafata desfasurata de 4510 mp si este dispus pe 5 niveluri: - Subsol : 20 spatii depozitare - Parter: hol receptie, 13 camere, 4 grupuri sanitare, o baie - Etaj 1: 18 camere, 16 bai - Etaj 2 : 19 camere, 16 bai - Etaj 3: 19 camere, 16 bai - Etaj 4: 6 camere, doua bucatarii, spatiu restaurant, doua grupuri sanitare Ultimele doua etaje sunt complet renovate tip hotel. Terenul pe care este amplasata constructia are 1000mp in proprietate si 1.500 mp in folosinta. Pretul de vanzare este de 4.250.000 euro, nepurtator de TVA. Va stam la dispozitie pentru stabilirea unei vizionari sau orice detaliu aditional.
Citește mai mult Citește mai puțin

Detalii spațiu comercial

ID anunț: 2569881 Actualizat în: 02 Martie 2026
Suprafață utilă: 3.212 mp
Suprafață utilă totală: 3.212 mp
Regim înălțime: P+4E
An construcție: 1999

Istoric preț

Facilități

Utilități
Curent Apă Canalizare Gaze

Puncte de interes

Mijloace transport
transport
Alexandru cel Bun
Mijloace transport aprox. 129 m
transport
Alexandru cel Bun
Mijloace transport aprox. 131 m
transport
Statia Alexandru cel Bun; Linia: 16, 36
Mijloace transport aprox. 144 m
transport
Bulevardul Lacul Tei
Mijloace transport aprox. 299 m
Școală
education
Gradinita Numarul 7
Învățământ aprox. 219 m
education
Gradinita nr. 7
Învățământ aprox. 241 m
education
Scoala de muzica si arte plastice nr. 4
Învățământ aprox. 251 m
education
Scoala Gimnaziala de Arte nr. 4
Învățământ aprox. 265 m
Recreere
restaurants
Shaorma Nora
Restaurante aprox. 198 m
shopping
Domino Plaza
Supermarket/Mall aprox. 284 m
parks
Parc
Recreere aprox. 293 m
shopping
Issa Supermarket
Supermarket/Mall aprox. 373 m

Proprietăți similare

Spațiu comercial, de 260 mp, în Barbu Văcărescu
4.000.000 €
București, Barbu Văcărescu
260 mp utili
8E
Birou, de 3,020 mp, în Iancului
4.500.000 €
București, Iancului
3.020 mp utili
2009
Birou, de 1,907 mp, în Armeneasca
4.500.000 €
București, Armeneasca
1.907 mp utili
670 mp teren
4E
Birou, de 1,907 mp, în Armeneasca
4.100.000 €
București, Armeneasca
1.907 mp utili
5E
2009
Birou, de 1,907 mp, în Armeneasca
3.850.000 €
București, Armeneasca
1.907 mp utili
6E
2009
Spațiu comercial, de 4,000 mp, în Barbu Văcărescu
4.250.000 €
București, Barbu Văcărescu
4.000 mp utili
Hotel/Pensiune, de 3,161.3999023438 mp, în Barbu Văcărescu
4.460.000 €
București, Barbu Văcărescu
3.161,4 mp utili
4E
Birou, de 2,500 mp, în Iancului
4.500.000 €
București, Iancului
2.500 mp utili
6E
2015
Birou, de 3,300 mp, în Colentina
4.100.000 €
București, Colentina
3.300 mp utili
3E
2007

Abonează-te la newsletter să fii primul care primește cele mai noi recomandări de proprietăți și sfaturi de la experți.