Vanzare spatiu comercial / birou zona Eminescu

520.000 €
3,768.12 € / mp

Eminescu, Bucureşti

Suprafață utilă totală:
138 mp
An construcție:
2011

Descriere spațiu comercial

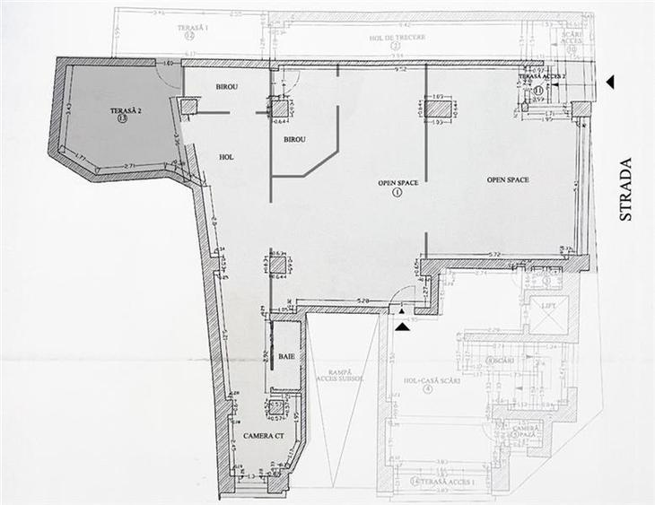
Va oferim spre vanzare un spatiu comercial potrivit atat pentru un magazin, cafenea, showroom, si ca spatiu de birou in zona Eminescu, repere Vasile Lascar, in bloc construit in 2011. Exista o mare camer open space de aproximat 100 mp, actual compartimentat cu pereti usoare din rigips, in mai multe camerute si birouri pe in total de 160 mp. Spatiu are o vitrina de aproximativ 5m, intrare separata direct din strada, alarma, monitorizare video, sistem automat de climatizare, centrala termica proprie si toate utilitati. ID intern: 7R-1454
Citește mai mult Citește mai puțin

Detalii spațiu comercial

ID anunț: 1510570 Actualizat în: 31 Martie 2026
Suprafață utilă: 138 mp
Suprafață utilă totală: 138 mp
An construcție: 2011

Istoric preț

Puncte de interes

Mijloace transport
transport
Teatrul Metropolis
Mijloace transport aprox. 169 m
transport
Statia Piata Gemeni; Linia:5, 16
Mijloace transport aprox. 245 m
transport
Statia Mihai Eminescu; Linia:16
Mijloace transport aprox. 246 m
transport
Mihai Eminescu
Mijloace transport aprox. 246 m
Școală
education
Colegiul National "Cantemir-Voda"
Învățământ aprox. 291 m
education
Gradinita numarul 133
Învățământ aprox. 322 m
education
Scoala Pentru Hipoacuzici
Învățământ aprox. 332 m
education
Liceul Tehnologic Special nr. 3
Învățământ aprox. 346 m
Recreere
restaurants
Saphir
Restaurante aprox. 143 m
shopping
Mega Image Concept Store
Supermarket/Mall aprox. 297 m
parks
Parc
Recreere aprox. 364 m
shopping
Mega Image - Icoanei
Supermarket/Mall aprox. 497 m

Proprietăți similare

Birou, de 150 mp, în Eminescu
519.900 €
București, Eminescu
150 mp utili
2018
Spațiu comercial, de 104 mp, în Ștefan cel Mare
530.000 €
București, Ștefan cel Mare
104 mp utili
8E
1980
Spațiu comercial, de 150 mp, în Dacia
520.000 €
București, Dacia
150 mp utili
Spațiu comercial, de 162 mp, în Vatra Luminoasă
500.000 €
București, Vatra Luminoasă
162 mp utili
Spațiu comercial, de 250 mp, în Dacia
567.000 €
București, Dacia
250 mp utili
1E
1990
Spațiu comercial, de 50 mp, în Moșilor
500.000 €
București, Moșilor
50 mp utili
Spațiu comercial, de 100 mp, în Iancului
560.000 €
București, Iancului
100 mp utili
Spațiu comercial, de 150 mp, în Dacia
520.000 €
București, Dacia
150 mp utili
Birou, de 138 mp, în Dacia
520.000 €
București, Dacia
138 mp utili
6E
2013

Abonează-te la newsletter să fii primul care primește cele mai noi recomandări de proprietăți și sfaturi de la experți.