Pensiune turistica 4 margarete I Prahova I investi?ie p...

590.000 €
590 € / mp

Schiuleşti, Judeţul Prahova

Suprafață utilă totală:
1.000 mp

Descriere spațiu comercial

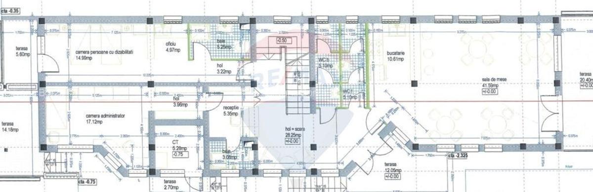
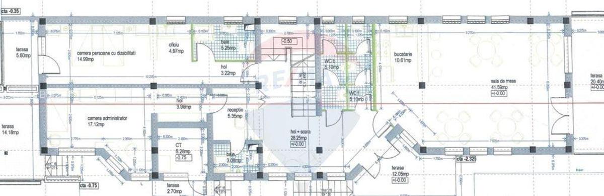
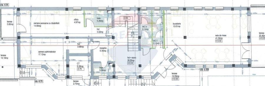
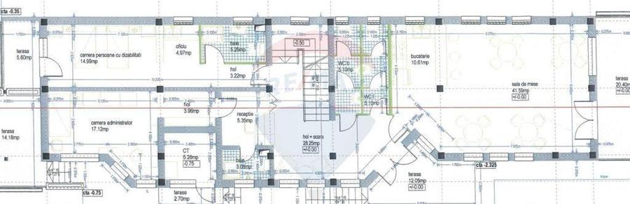
Va propun spre vanzare pensiunea turistica, clasificata la 4 margarete, situata in zona Salinei Slanic Prahova, cea mai mare salina din Europa. Pensiunea este amplasata intr-un cadru natural deosebit, oferind o panorama spectaculoasa asupra dealurilor si muntilor din imprejurimi. La o distanta de doar 90100 km de Bucuresti (aproximativ 1 ora si 20 de minute de mers cu masina), proprietatea beneficiaza de o pozitionare excelenta, cu acces facil si un flux constant de turisti romani si straini. Deschisa circuitului turistic in august 2014 si extinsa in 2018, pensiunea se intinde pe un teren de 6.000 mp si are o suprafata utila totala de aproximativ 1.000 mp. Proprietatea este alcatuita din doua corpuri de cladire. Cele 15 camere sunt spatioase, elegante si decorate cu atentie la detalii, fiecare cu design personalizat, mobilier din lemn masiv si grup sanitar propriu. Accesul se face cu cartela magnetica, iar fiecare camera este dotata cu economizor de energie. Complexul ofera doua sali de restaurant interioare, o terasa exterioara generoasa si o bucatarie profesionala complet echipata. Pensiunea este dotata cu: - piscina exterioara cu acoperis rabatabil si zona de plaja cu sezlonguri - foisoare, pavilion de divertisment (masa de biliard, fotbal de masa etc.), teren de sport, loc de joaca pentru copii, spatii verzi, parcare privata - panouri solare si fotovoltaice, generator electric de ultima generatie, camere video de supraveghere - sistem informatizat si automatizat integral, inclusiv rezervari online si acces camere Iluminatul exterior este alimentat cu energie solara, contribuind la un consum redus de utilitati si o eficienta energetica ridicata. Pensiunea are o caracteristica rara datorita amplasarii in vecinatatea unui deal sub care se afla una dintre galeriile salinei, aerul din zona este puternic ionizat natural (pana la 50% din gradul de ionizare din interiorul salinei). Fiecare camera este dotata suplimentar cu lampadar din sare (80 kg), crescand gradul de ionizare la aproximativ 70% un veritabil tratament respirator natural chiar in timpul somnului. Pensiunea functioneaza cu profit constant, are toate autorizatiile de functionare si un portofoliu stabil de clienti.Este listata pe platforme internationale si detine propriul site de rezervari automatizat, cu proces complet de booking si plata online. Se vinde ca afacere la cheie, cu tot cu societatea comerciala care o opereaza, oferind astfel posibilitatea unei preluari imediate si fara intrerupere a activitatii. Ideala pentru investitori care cauta o proprietate turistica complet operationala, cu reputatie solida si potential real de dezvoltare. Pentru informatii suplimentare va stau cu drag la dispozitie! An finalizare constructie: 2014 Stadiu constructie: Finalizat Numar incaperi: 15 Posibilitate parcare: Nu Publicat prin , vezi anuntul complet aici.
Citește mai mult Citește mai puțin

Detalii spațiu comercial

ID anunț: 2682868 Actualizat în: 10 Februarie 2026
Suprafață utilă: 1.000 mp
Suprafață utilă totală: 1.000 mp

Istoric preț

Puncte de interes

Recreere
parks
Parcul Maior Nita Nedelcovici
Recreere aprox. 205 m

Proprietăți similare

Spațiu comercial, de 1,400 mp, în Potigrafu
599.000 €
Județul Prahova, Potigrafu
1.400 mp utili
2012
Spațiu comercial, de 700 mp, în Breaza
548.700 €
Județul Prahova, Breaza
700 mp utili
Spațiu comercial, de 15,851 mp, în Bucov
590.000 €
Județul Prahova, Bucov
15.851 mp utili
Spațiu comercial, de 424 mp, în Valea Alba
600.000 €
Județul Prahova, Bușteni
424 mp utili
448 mp teren
1E
Hotel/Pensiune, de 66.666702270508 mp, în Groșani
590.000 €
Județul Prahova, Groșani
66,67 mp utili
2014
Hotel/Pensiune, de 18 mp, în Bușteni
560.000 €
Județul Prahova, Bușteni
18 mp utili
Spațiu comercial, de 3,824 mp, în B-dul București
550.000 €
Ploiești, B-dul București
3.824 mp utili
Spațiu industrial, de 784 mp, în Mihai Bravu
550.000 €
Ploiești, Mihai Bravu
784 mp utili
1.666,68 mp teren
2010
Spațiu industrial, de 553.09997558594 mp, în Sud
600.000 €
Ploiești, Sud
553,1 mp utili
900 mp teren
2023

Abonează-te la newsletter să fii primul care primește cele mai noi recomandări de proprietăți și sfaturi de la experți.