Spatiu comercial de inchiriat, Parcare, Apahida-Sannicoara

1.194 €
10.03 € / mp

Sânnicoară, Judeţul Cluj

Suprafață utilă totală:
119 mp

Descriere spațiu comercial

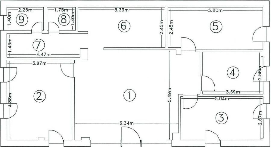
ImobiliareJucu va propune spre inchiriere uns patiu comercial situate in localitatea Sannicoara intr-o zona de maxim interes Spatiul este ideal pentru showroom, magazin, birouri sau activitati de prestari servicii, avand o suprafata generoasa, de 119.4mp, open-space, cu posibilitate de compartimentare Fatada vitrata vizibilitate excelenta din strada Acces facil pietonal si auto Utilitati separate, un grup sanitar etc. Zona cu trafic intens, aproape de mijloace de transport, centre de afaceri si rezidentiale Potrivit pentru activitati comerciale. Disponibil imediat, contract pe termen lung. LA PRETUL AFISAT SE ADAUGA UN TVA DE 21%! Atasat pozelor din anunt se poate vedea o idee de compartimentare Stii ce cumperi, stii cui vinzi!
Citește mai mult Citește mai puțin

Detalii spațiu comercial

ID anunț: 4160741 Actualizat în: 20 Aprilie 2026
Suprafață utilă: 119 mp
Suprafață utilă totală: 119 mp

Istoric preț

Puncte de interes

Mijloace transport
transport
Dezmir Airfiled
Mijloace transport aprox. 856 m
transport
Agro Transilvania
Mijloace transport aprox. 891 m
transport
EVW Holding
Mijloace transport aprox. 893 m
transport
Halta Dezmir
Mijloace transport aprox. 1221 m
Școală
education
Gradinita
Învățământ aprox. 407 m
Recreere
parks
Teren sportiv
Recreere aprox. 1209 m

Abonează-te la newsletter să fii primul care primește cele mai noi recomandări de proprietăți și sfaturi de la experți.