Spatiu comercial 625 mp vanzare / inchiriere zona centrala Reghin

9 €
0.01 € / mp

Reghin, Judeţul Mureş

Suprafață utilă totală:
625 mp

Descriere spațiu comercial

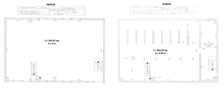
Ofer spre vanzare sau inchiriere spatiu comercial amplasat in zona centrala, in Reghin, cartier Rodnei, la doar 130 m pietonal de Parcul Central. Imobilul este situat in imediata vecinatate a Gimnaziului de Stat Alexandru Ceusianu Reghin, intr-o zona cu trafic pietonal si auto intens, beneficiind de vizibilitate foarte buna. Suprafata totala utila este de 625 mp, proprietatea fiind potrivita atat pentru desfasurarea directa a unei activitati comerciale, cat si ca investitie. Cladirea este dispusa pe parter + subsol, astfel: PARTER Suprafata utila: 341 mp Inaltime: 6 m Doua accese pietonale din exterior Doua accese auto direct din str. Rodnei Accesul spre spatiul comercial se face si din Piata Petru Maior SUBSOL Suprafata utila: 284 mp Inaltime: 2,46 m Acces prin doua scari interioare din beton Posibilitate de montare lift de marfa DOTARI: Tamplarie PVC noua UTILITATI Energie electrica bransament trifazic, putere absorbita 65 kW (exista posibilitatea majorarii puterii, la cerere) Apa Gaz Canalizare DESTINATII POSIBILE Datorita pozitionarii centrale, suprafetei generoase, inaltimii parterului si acceselor multiple, spatiul este ideal pentru: supermarket (alimentar / nealimentar) sala de fitness clinica / laborator medical salon de infrumusetare activitati de productie depozitare alte activitati comerciale sau de servicii Imobilul permite amenajari flexibile, in functie de necesitatile viitorului utilizator. Pretul de vanzare si conditiile de inchiriere se discuta in functie de varianta. Pentru detalii suplimentare si programarea unei vizionari ma puteti contacta telefonic
Citește mai mult Citește mai puțin

Detalii spațiu comercial

ID anunț: 3455598 Actualizat în: 02 Aprilie 2026
Suprafață utilă: 625 mp
Suprafață utilă totală: 625 mp

Istoric preț

Puncte de interes

Recreere
parks
Parc
Recreere aprox. 317 m
parks
Parc
Recreere aprox. 368 m
parks
Teren sportiv
Recreere aprox. 400 m
parks
Parc
Recreere aprox. 487 m

Abonează-te la newsletter să fii primul care primește cele mai noi recomandări de proprietăți și sfaturi de la experți.