Spatiu comercial, P+1, strada Henry Ford, 330 mp teren

250.000 €
1,811.59 € / mp

Malu Mare, Judeţul Dolj

Suprafață utilă totală:
138 mp

Descriere spațiu comercial

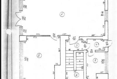
Blitz va propune in exclusivitate spre vanzare, spatiu comercial situat stradal la strada Henry Ford, vis a vis de Oltenia Garden. Spatiul are un teren aferent de 330 mp, si o suprafata utila de 138 mp. In momentul de fata, etajul si parterul, nu comunica prin interior(accesul la etaj se face pe scari exterioare), insa se pot face modificari, fiind placa turnata de beton. Exista spatiu pentru locuri de parcare in fata cladirii, constructia fiind retrasa de pa strada. Ca utilitati avem: curent trifazic, apa este la proprietatea vecina, insa nu este trasa pe teren. Disponibila imediat! Va asteptam cu drag la vizionare! Cod oferta / ID BLITZ: P160684 Id intern: P160684 Stadiu constructie: Finalizat Nr. locuri parcare: 5-10 Tip imobil: Spatiu stradal
Citește mai mult Citește mai puțin

Detalii spațiu comercial

ID anunț: 3006661 Actualizat în: 27 Martie 2026
Suprafață utilă: 138 mp
Suprafață utilă totală: 138 mp

Istoric preț

Facilități

Mobilat
Nemobilat
Facilități imobil
Acoperiș Curte
Izolații termice
Exterior

Puncte de interes

Recreere
parks
Parc
Recreere aprox. 632 m

Proprietăți similare

Spațiu comercial, de 192 mp, în Bariera Vâlcii
275.000 €
Craiova, Bariera Vâlcii
192 mp utili
2006
Spațiu comercial, de 90 mp, în Central
247.500 €
Craiova, Central
90 mp utili
Spațiu comercial, de 81 mp, în Calea București
270.000 €
Craiova, Calea București
81 mp utili
Spațiu comercial, de 90 mp, în Popoveni
235.000 €
Județul Dolj, Popoveni
90 mp utili
Spațiu comercial, de 137 mp, în Central
234.000 €
Craiova, Central
137 mp utili
Spațiu comercial, în Central
250.000 €
Craiova, Central
3E
Spațiu comercial, de 767 mp, în Exterior Vest
230.000 €
Craiova, Exterior Vest
767 mp utili
Spațiu comercial, de 97 mp, în Calea București
275.000 €
Craiova, Calea București
97 mp utili
Spațiu comercial, de 100 mp, în Sărari
250.000 €
Craiova, Sărari
100 mp utili
2020

Abonează-te la newsletter să fii primul care primește cele mai noi recomandări de proprietăți și sfaturi de la experți.