Cladire comerciala, 850 mp, teren 1500mp, Zona Leroy Merlin

1.550.000 €
2,557.76 € / mp

Tudor Vladimirescu, Iaşi

Suprafață utilă totală:
606 mp
Nr. niveluri:
2
An construcție:
2003

Descriere spațiu comercial

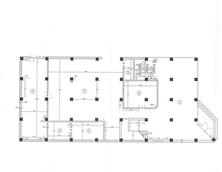
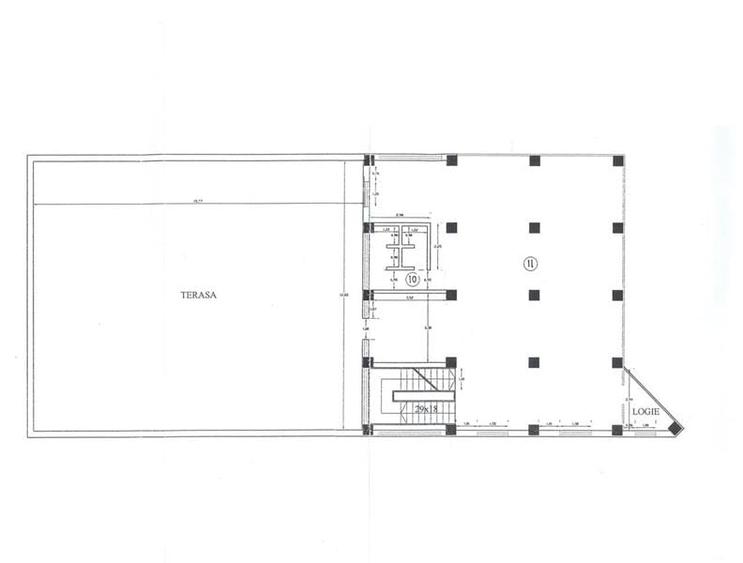
De vanzare, cladire cu destinatie comerciala si de birouri, situata in zona Tudor Vladimirescu - Leroy Merlin Silk District, avand suprafata de 850mp din care 606mp incaperi si 244mp terase si logii, teren 1500 mp din care liber de constructii 1089.32mp, constand predominant in platforme betonate. Cladirea este ideala pentru o multitudine de domenii de activitate: cum ar fi: clinica medicala, laborator de analize, magazin, showroom si birouri de consultanta, centru de fitness, centru de kinetoterapie recuperare, birouri IT, gradinita, scoala, afterschool, etc. Spatiul este compartimentat astfel: Parter - magazin de prezentare si depozit in partea din spate, tot spatiul avand suprafata de 342 mp; Etaj 1 - birouri cu suprafata de 155 mp si terasa cu suprafata de 200 mp; Etaj 2 - birouri cu suprafata de 117 mp si terasa de 35 mp Amplasamentul beneficiaza de parcare betonata la frontul stradal si are implementate toate utilitatile necesare desfasurarii unei activitati comerciale. ID intern: 2142 Aceasta oferta apartine Companiei Palace Real Estate
Citește mai mult Citește mai puțin

Detalii spațiu comercial

ID anunț: 205788 Actualizat în: 03 Februarie 2026
Suprafață utilă: 606 mp
Suprafață utilă totală: 606 mp
Regim înălțime: P+2E
An construcție: 2003

Istoric preț

Facilități

Utilități
Apă Curent Gaze Canalizare

Puncte de interes

Mijloace transport
transport
Baumax
Mijloace transport aprox. 94 m
transport
Baumax
Mijloace transport aprox. 103 m
transport
Statia "Moldoplast", linia 29
Mijloace transport aprox. 168 m
transport
Statia "Moldoplast", linia 1,2,5,11,13
Mijloace transport aprox. 170 m
Școală
education
Gradinita cu program prelungit Nr. 26
Învățământ aprox. 305 m
education
Sc Gen 24 Ion Ghica
Învățământ aprox. 310 m
education
Şcoala Gen.nr. 24 Ion Ghica
Învățământ aprox. 317 m
education
Rectoratul Universitatii Politehnice Iasi
Învățământ aprox. 548 m
Recreere
shopping
BAUMAX-X Iasi
Supermarket/Mall aprox. 17 m
restaurants
Grill
Restaurante aprox. 374 m
shopping
Kaufland
Supermarket/Mall aprox. 418 m
parks
Teren sportiv
Recreere aprox. 424 m

Proprietăți similare

Spațiu comercial, de 1,000 mp, în Baza 3
1.600.000 €
Iași, Baza 3
1.000 mp utili
2E
2006
Hotel/Pensiune, de 421.54998779297 mp, în Central
1.400.000 €
Iași, Central
421,55 mp utili
1E
1999
Spațiu comercial, de 658 mp, în Alexandru cel Bun
1.490.000 €
Iași, Alexandru cel Bun
658 mp utili
1990
Birou, de 456.42999267578 mp, în Central
1.500.000 €
Iași, Central
456,43 mp utili
2E
2007
Spațiu comercial, de 565 mp, în Ultracentral
1.400.000 €
Iași, Ultracentral
565 mp utili
Spațiu comercial, de 230 mp, în Central
1.600.000 €
Iași, Central
230 mp utili
2016
Spațiu comercial, de 565 mp, în Ultracentral
1.400.000 €
Iași, Ultracentral
565 mp utili
Hotel/Pensiune, de 400 mp, în Central
1.400.000 €
Iași, Central
400 mp utili
Birou, de 470 mp, în Palat
1.500.000 €
Iași, Palat
470 mp utili
2E
2007

Abonează-te la newsletter să fii primul care primește cele mai noi recomandări de proprietăți și sfaturi de la experți.