Spațiu comercial stradal de vânzare – 49,3 mp, Podu Roș – B-dul Socola, Iași

120.000 €
2,400.00 € / mp

Podu Roş, Iaşi

Suprafață utilă totală:
50 mp
Nr. niveluri:
4
An construcție:
1961

Descriere spațiu comercial

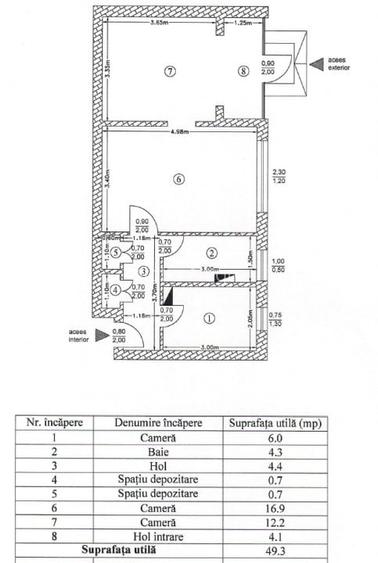
Vă propunem spre vânzare un spațiu comercial cu o suprafață utilă de 49,3 mp, situat la parterul unui bloc cu 4 etaje, în zona Podu Roș, pe Bulevardul Socola – reper Otiola. Compartimentare funcțională, conform schiței atașate: - 3 camere (16,9 mp, 12,2 mp și 6,0 mp) - 1 baie (4,3 mp) - 2 spații de depozitare (câte 0,7 mp) - 2 holuri (4,4 mp și 4,1 mp) Acces direct din exterior – ideal pentru activități comerciale, cu vizibilitate stradală Dotări principale: Centrală termică proprie pe gaz Aer condiționat Tâmplărie din aluminiu Locuri de parcare disponibile atât în fața cât și în spatele blocului Vedere către bulevardul Socola Ideal pentru: Cabinet medical / stomatologic Salon înfrumusețare Sediu firmă / birou Magazin specializat / showroom Alte activități comerciale sau de servicii Spațiul este liber și disponibil imediat, cu toate utilitățile funcționale. Poate fi folosit ca atare sau adaptat ușor în funcție de destinație. Pentru mai multe detalii sau pentru o vizionare, contactați-ne.
Citește mai mult Citește mai puțin

Detalii spațiu comercial

ID anunț: 4088155 Actualizat în: 07 Aprilie 2026
Suprafață utilă: 50 mp
Suprafață utilă totală: 50 mp
Regim înălțime: P+4E
An construcție: 1961

Istoric preț

Facilități

Utilități
Curent Apă Canalizare

Puncte de interes

Mijloace transport
transport
Statia "Podu Rosu", linia 1,2,5,13
Mijloace transport aprox. 261 m
transport
Statia "Podi Rosu", linia 29
Mijloace transport aprox. 266 m
transport
Statia "Sala Polivalenta", linia 1,13
Mijloace transport aprox. 329 m
transport
Statia "Sala Polivalenta", linia 41, 28, 41B
Mijloace transport aprox. 346 m
Școală
education
Institutul politehnic de cercetare Iasi
Învățământ aprox. 37 m
education
Departamentul de Ingineria Instalatiilor
Învățământ aprox. 113 m
education
Facultatea de Electrotehnica Iasi
Învățământ aprox. 121 m
education
Facultatea de Inginerie Electrica
Învățământ aprox. 121 m
Recreere
restaurants
Fever
Restaurante aprox. 60 m
parks
Parc
Recreere aprox. 216 m
shopping
Minimarket Cidma
Supermarket/Mall aprox. 290 m
shopping
Auchan
Supermarket/Mall aprox. 363 m

Proprietăți similare

Spațiu comercial, de 50 mp, în Podu Roș
120.000 €
Iași, Podu Roș
50 mp utili
1961
Spațiu comercial, de 50 mp, în Podu Roș
120.000 €
Iași, Podu Roș
50 mp utili
Spațiu comercial, de 50 mp, în Podu Roș
120.000 €
Iași, Podu Roș
50 mp utili
Spațiu comercial, de 46 mp, în Podu Roș
118.000 €
Iași, Podu Roș
46 mp utili
Spațiu comercial, de 38 mp, în Păcurari
112.300 €
Iași, Păcurari
38 mp utili
3E
2025
Spațiu comercial, de 67 mp, în Bucium
120.600 €
Iași, Bucium
67 mp utili
2022
Spațiu comercial, de 48 mp, în Frumoasa
131.000 €
Iași, Frumoasa
48 mp utili
4E
1984
Spațiu comercial, de 63 mp, în Păcurari
125.000 €
Iași, Păcurari
63 mp utili
Spațiu comercial, de 26 mp, în Central
119.000 €
Iași, Central
26 mp utili

Abonează-te la newsletter să fii primul care primește cele mai noi recomandări de proprietăți și sfaturi de la experți.