Cladire birouri / activități medicale - 1032 mp utili - semicentral

2.100.000 €
2,034.88 € / mp

Podu Roş, Iaşi

Suprafață utilă totală:
1.032 mp
Nr. niveluri:
5
An construcție:
2007

Descriere spațiu comercial

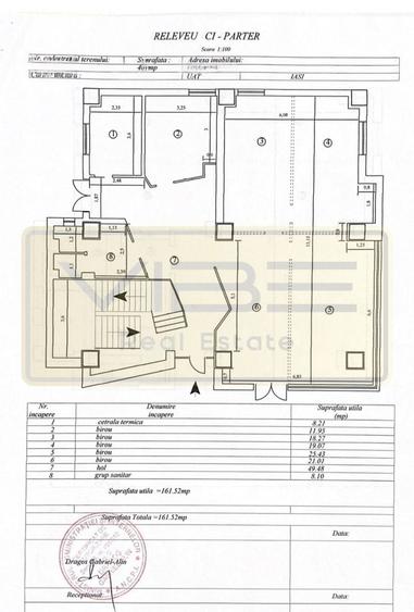
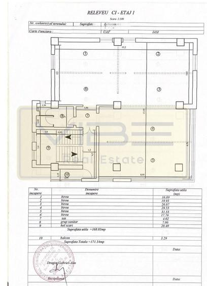
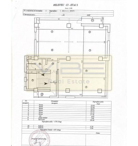
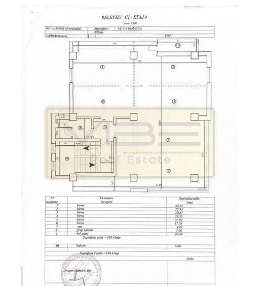
Clădire de birouri / spatii medicale , de vânzare Se oferă spre vânzare clădire multifuncțională, ideală pentru activități medicale, birouri, IT, consultanță sau servicii, cu regim de înălțime P + 4 etaje + terasă. Imobilul are o suprafață utilă totală de 952,72 mp, o suprafață construită de 1048 mp și este amplasat pe un teren de 407 mp, cu amprentă la sol de 196 mp. Clădirea este pretabilă pentru activități medicale precum cabinete de consultații, clinici cu internare de zi sau internare pe termen lung, centre de diagnostic sau recuperare, cu mențiunea că este necesar montajul unui lift pentru conformitate și accesibilitate. De asemenea, este potrivită pentru activități de birou, IT, consultanță, firme de servicii sau sediu de companie. -Dispune de aproximativ 8 locuri de parcare, situate în fața imobilului, pe terenul aflat în proprietate. -Clădirea este complet funcțională și dotată cu: -2 centrale termice -Sistem complet de încălzire și răcire -instalații sanitare și electrice complet funcționale Este inclus in pret si o parcela de teren de aproximativ 400 mp, ce prezinta o constructie la momentul de fata de aprox 80mp, racordata la toate utilitatile si complet functionala, ideala pentru activitati precum : (RMN, CT, spații medicale, etc.). Lotul de teren vizeaza si aprox 10 locuri de parcare cu posibilitate de crestere. MENTIUNE: se poate scoate PUZ pentru constructie P+3. Zona oferă acces facil catre centrul orașului. Potionat la doar cateva minute de Piata Nicolina, Lidl Dedeman cat si statia de autobuz si tramvai. Preț de vânzare: 2.100.000 euro + TVA. Se poate face atat vanzare cat si cesiune de SRL cu tot cu bunurile imobile mentionate mai sus. Cladirea a fost inchiriata pana recent la o multinationala cu un pret mediu de 9 euro/ mp+ tva. Proprietatea reprezintă o oportunitate solidă de investiție, cu multiple opțiuni de utilizare și dezvoltare ulterioară.
Citește mai mult Citește mai puțin

Detalii spațiu comercial

ID anunț: 3222792 Actualizat în: 20 Februarie 2026
Suprafață utilă: 1.032 mp
Suprafață utilă totală: 1.032 mp
Regim înălțime: P+5E
An construcție: 2007

Istoric preț

Facilități

Utilități
Curent Apă Canalizare

Puncte de interes

Mijloace transport
transport
Casa Sindicatelor
Mijloace transport aprox. 58 m
transport
Statia "Casa Sindicatelor", linia 30, 19, 46, 43C, 42, 30B, 43
Mijloace transport aprox. 68 m
transport
Statia "Piata Nicolina", linia 30,30b
Mijloace transport aprox. 183 m
transport
Piata Nicolina
Mijloace transport aprox. 188 m
Școală
education
Grad 6
Învățământ aprox. 132 m
education
Strumphy family
Învățământ aprox. 262 m
education
Scoala generala nr.11 Otilia Cazimir
Învățământ aprox. 298 m
education
Gradinita cu program prelungit nr.3
Învățământ aprox. 352 m
Recreere
restaurants
Agapa
Restaurante aprox. 37 m
parks
Parc
Recreere aprox. 95 m
shopping
Minimarket Cidma
Supermarket/Mall aprox. 329 m
shopping
Kaufland
Supermarket/Mall aprox. 567 m

Proprietăți similare

Spațiu industrial, de 2,400 mp, în Miroslava
2.040.000 €
Iași, Miroslava
2.400 mp utili
1980
Spațiu industrial, de 3.0260000228882 mp, în Exterior Vest
2.000.000 €
Iași, Exterior Vest
3,03 mp utili
1E
2014
Spațiu comercial, de 2,100 mp, în Zona industrială
1.950.000 €
Iași, Zona industrială
2.100 mp utili
1E
2008
Spațiu comercial, de 2,100 mp, în Baza 3
2.000.000 €
Iași, Baza 3
2.100 mp utili
1E
2018
Spațiu industrial, în Dumești
2.000.000 €
Județul Iași, Dumești
1E
2014
Spațiu comercial, de 2,000 mp, în Miroslava
2.000.000 €
Județul Iași, Miroslava
2.000 mp utili
1E
2024
Spațiu comercial, de 3,026 mp, în Lețcani
2.000.000 €
Județul Iași, Lețcani
3.026 mp utili
1E
2015
Spațiu comercial, de 2,400 mp, în Miroslava
2.040.000 €
Județul Iași, Miroslava
2.400 mp utili

Abonează-te la newsletter să fii primul care primește cele mai noi recomandări de proprietăți și sfaturi de la experți.