Cladire de vanzare Copou Liceul Sportiv

765.000 €
4,473.68 € / mp

Copou, Iaşi

Suprafață utilă totală:
171 mp

Descriere spațiu comercial

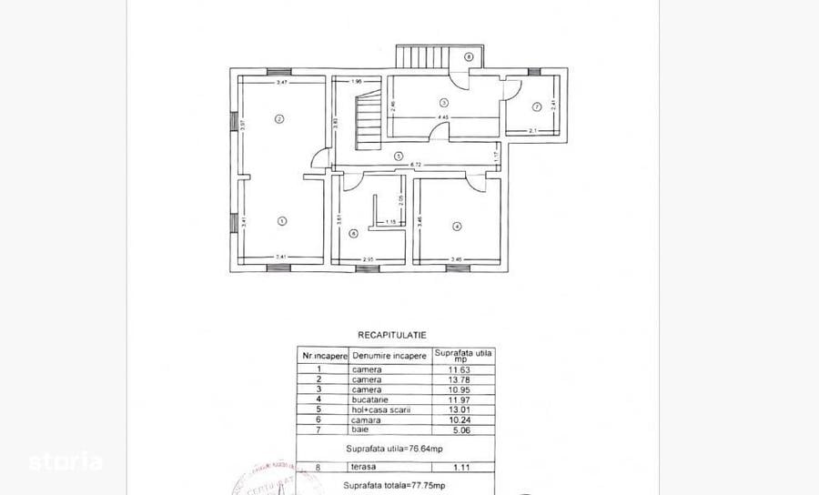
Va prezentam o proprietate de vanzare, situata in inima cartierului Copou, la doar cativa pasi de Liceul Sportiv. Cladirea se remarca prin pozitionarea excelenta, accesibilitatea facila si potentialul ridicat atat pentru investitie, cat si pentru diverse activitati comerciale.Proprietatea are o suprafata totala de 171 m.p., fiind structurata pe demisol si parter (D+P), iar terenul aferent este in suprafata de 517 m.p. In plus, pe teren se afla si o anexa de 18 m.p., ce poate fi utilizata ca spatiu de depozitare, birou secundar sau zona tehnica, in functie de necesitati.Cladirea este bine proportionata, luminoasa si permite multiple scenarii de demisol, imobilul dispune de 76,64 m.p., la care se adauga o terasa de 1,11 m.p., ideala pentru acces secundar sau zona tehnica. Parterul ofera 76,82 m.p., completate de doua terase generoase, de 9,85 m.p. si 6,83 m.p., care pot fi folosite pentru relaxare sau zona de asteptare.Un avantaj important il reprezinta suprafata generoasa a terenului, care permite parcarea mai multor autoturisme, aspect esential pentru activitati comerciale, birouri sau clinici.Cladirea este in prezent inchiriata, generand un venit lunar de 3000 euro, ceea ce o transforma intr-o investitie sigura si imediat profitabila. Contractul de inchiriere poate fi preluat, oferind continuitate si stabilitate financiara noului proprietar.Pretul de vanzare este de 765.000 euro.Aceasta proprietate reprezinta o oportunitate excelenta pentru investitori, companii sau antreprenori care isi doresc un spatiu reprezentativ intr-una dintre cele mai apreciate zone ale Iasului.Pentru mai multe informatii, contactati-ne!
Citește mai mult Citește mai puțin

Detalii spațiu comercial

ID anunț: 3508923 Actualizat în: 01 Aprilie 2026
Suprafață utilă: 171 mp
Suprafață utilă totală: 171 mp

Istoric preț

Puncte de interes

Mijloace transport
transport
Triumf
Mijloace transport aprox. 22 m
transport
Triumf
Mijloace transport aprox. 26 m
transport
Statia Triumf 6B 41, 42, 28, 41B,
Mijloace transport aprox. 30 m
transport
Statia Triumf 1,8,13
Mijloace transport aprox. 37 m
Școală
education
Colegiul National "Garabet Ibraileanu"
Învățământ aprox. 224 m
education
Colegiul Tehnic Gheorghe Asachi
Învățământ aprox. 260 m
education
Colegiul Tehn Gheorghe Asachi
Învățământ aprox. 272 m
education
Universitatea de Arte "George Enescu" (en)
Învățământ aprox. 279 m
Recreere
restaurants
Faraon
Restaurante aprox. 151 m
parks
Teren sportiv
Recreere aprox. 189 m
shopping
Supermagazin Copou
Supermarket/Mall aprox. 195 m
shopping
Profi
Supermarket/Mall aprox. 952 m

Proprietăți similare

Spațiu comercial, de 217 mp, în Central
699.000 €
Iași, Central
217 mp utili
Birou, de 500 mp, în Nicolina
750.000 €
Iași, Nicolina
500 mp utili
Spațiu comercial, de 912 mp, în Zona industrială
700.000 €
Iași, Zona industrială
912 mp utili
Spațiu comercial, de 217 mp, în Baza 3
699.000 €
Iași, Baza 3
217 mp utili
10E
Spațiu comercial, de 500 mp, în Moara de Vânt
699.900 €
Iași, Moara de Vânt
500 mp utili
2E
Spațiu comercial, de 460 mp, în Galata
779.000 €
Iași, Galata
460 mp utili
Birou, de 378 mp, în Ultracentral
756.000 €
Iași, Ultracentral
378 mp utili
1991
Spațiu comercial, de 2,924 mp, în Tomești
750.000 €
Județul Iași, Tomești
2.924 mp utili
Spațiu industrial, de 905 mp, în Tomești
700.000 €
Județul Iași, Tomești
905 mp utili
2021

Abonează-te la newsletter să fii primul care primește cele mai noi recomandări de proprietăți și sfaturi de la experți.