Apartament, parter, b-dul Dunarea Micro 21

100.000 €
1,111.11 € / mp

Micro 21, Galaţi

Suprafață utilă totală:
90 mp
Nr. niveluri:
4
An construcție:
1986

Descriere spațiu comercial

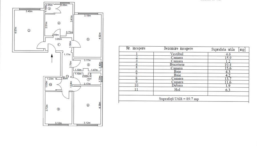
Agentia Imobiliară Domus vă oferă spre vânzare un apartament spații de 4 camere decomandate, cu o suprafață utilă de 90 mp, situată în zona Micro 21, în imediata apropiere a Școlii nr. 3 și a Bulevardului Dunărea. Apartamentul beneficiază de o orientare dublă, astfel încât să vezi pe ambele părți ale blocului, oferind flexibilitate pentru utilizarea spațiului de locuit sau pentru activități. Datorită poziționării excelente față de Bulevardul Dunărea, imobilul este ideal pentru amenajarea unui spațiu comercial sau de birouri. Zona în care se află apartamentul este foarte bine deservită de mijloacele de transport în comun și oferă acces rapid la supermarketuri, grădinițe, școli, bănci, farmacii și parcuri, făcându-l astfel potrivit atât pentru locuință, c. Printre dotările apartamentului se numără o centrală termică proprie, branșament separat la apă, scurgere separată și tâmplărie din PVC cu geam termopan. Apartamentul este liber și disponibil imediat pentru mutare sau amenajare.
Citește mai mult Citește mai puțin

Detalii spațiu comercial

ID anunț: 1064168 Actualizat în: 28 Ianuarie 2026
Suprafață utilă: 90 mp
Suprafață utilă totală: 90 mp
Regim înălțime: P+4E
An construcție: 1986

Istoric preț

Facilități

Utilități
Apă Gaze

Puncte de interes

Mijloace transport
transport
Micro 19
Mijloace transport aprox. 112 m
transport
Micro 19
Mijloace transport aprox. 125 m
transport
Micro 19
Mijloace transport aprox. 183 m
transport
Facultatea de Medicina
Mijloace transport aprox. 266 m
Școală
education
Scoala gimnaziala nr. 29
Învățământ aprox. 339 m
education
Gradinita Motanul incaltat
Învățământ aprox. 453 m
education
Scoala Generala nr. 3
Învățământ aprox. 502 m
education
Liceul cu Program Sportiv
Învățământ aprox. 901 m
Recreere
restaurants
Chris
Restaurante aprox. 88 m
shopping
Econom Tapul Carpatin
Supermarket/Mall aprox. 206 m
parks
Parc
Recreere aprox. 212 m
shopping
Electrica Plati
Supermarket/Mall aprox. 286 m

Proprietăți similare

Spațiu comercial, de 106 mp, în Micro 21
92.000 €
Galați, Micro 21
106 mp utili
Spațiu comercial, de 75 mp, în Port
96.500 €
Galați, Port
75 mp utili
80 mp teren
4E
Spațiu comercial, de 60 mp, în Siderurgiștilor
100.000 €
Galați, Siderurgiștilor
60 mp utili
85 mp teren
1E
Spațiu comercial, de 202 mp, în Drăgănești
95.000 €
Județul Galați, Drăgănești
202 mp utili
Spațiu industrial, de 761 mp, în Nord
90.000 €
Județul Galați, Tecuci
761 mp utili
2020
Spațiu comercial, de 250 mp, în Furcenii Vechi
100.000 €
Județul Galați, Furcenii Vechi
250 mp utili
1.800 mp teren
1E

Abonează-te la newsletter să fii primul care primește cele mai noi recomandări de proprietăți și sfaturi de la experți.