Spațiu comercial 105 mp + curte, zonă intens circulată

153.000 €
1,457.14 € / mp

Kiseleff, Drobeta-Turnu Severin

Suprafață utilă totală:
105 mp

Descriere spațiu comercial

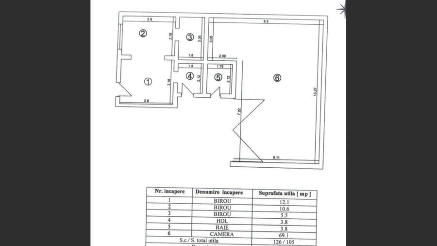
Capital Imobiliare vă propune spre vânzare, cu comision 0% la cumpărător, un spațiu comercial cu potențial ridicat, situat pe strada Kiseleff. Acest imobil are o suprafață utilă de 105 mp fiind compartimentat în 2 încăperi si sala diferite activitati de 69 mp, deschiderea la strada fiind de 10.27 ml, oferind flexibilitate pentru diverse activități comerciale: alimentație publică, birouri, salon, magazin, sala de petreceri pentru copii etc. În prezent, spațiul funcționează ca pizzerie, beneficiind de o bucătărie complet echipată (echipamentele pot fi achiziționate separat). Grupuri sanitare separate pentru clienți și personal Curte proprie de 40 mp cu acces direct din stradă Finisaje de calitate: gresie, faianță, tâmplărie PVC cu geam termopan Zonă cu trafic intens pietonal și auto, într-un cartier comercial foarte căutat Nu ezitati sa ne contactati pentru mai multe detalii și programarea unei vizionări! Nr terase: 1 Suprafata construita: 126 mp Nr garaje: 1 Nr incaperi: 3 Pret negociabil Utilitati - Sistem incalzire (Centrala proprie) Finisaje - Podele (Gresie); Stare interior (Buna); Ferestre cu geam termopan (PVC) Dotari - Contorizare (Apometre,Contor gaz); Dotari imobil (Curte) pret vanzare: 153000 moneda vanzare: EUR pret inchiriere: 153000 moneda inchiriere: EUR moneda inchiriere unitar: EUR
Citește mai mult Citește mai puțin

Detalii spațiu comercial

ID anunț: 391481 Actualizat în: 15 Decembrie 2025
Suprafață utilă: 105 mp
Suprafață utilă totală: 105 mp

Istoric preț

Facilități

Contorizare
Apometre Contor gaz
Dotări imobil
Curte
Utilități
Curent Apă Canalizare Gaze
Sistem încălzire
Centrală proprie
Podele
Gresie
Rulouri/Obloane
PVC
Ușă intrare
PVC
Uși interior
PVC
Stare interior
Bună
Ferestre cu geam termopan
PVC
Facilități
Curte Garaj

Puncte de interes

Mijloace transport
transport
Drobeta Turnu Severin
Mijloace transport aprox. 1680 m
transport
Drobeta Turnu Severin Est
Mijloace transport aprox. 1821 m
Școală
education
Scoala Generala Nr. 10
Învățământ aprox. 230 m
education
Scoala de Arta si Meserii
Învățământ aprox. 319 m
education
Colegiul National Traian
Învățământ aprox. 553 m
education
Scoala Generala Nr. 6
Învățământ aprox. 770 m
Recreere
parks
Parc
Recreere aprox. 184 m
restaurants
Hotel Severin
Restaurante aprox. 414 m
shopping
Penny Market
Supermarket/Mall aprox. 732 m
shopping
Decebal Shopping Center
Supermarket/Mall aprox. 833 m

Proprietăți similare

Proprietate specială, de 200 mp, în Traian
151.000 €
Drobeta-Turnu Severin, Traian
200 mp utili
1920
Hotel/Pensiune, de 110 mp, în Dubova
140.000 €
Județul Mehedinți, Dubova
110 mp utili
1990

Abonează-te la newsletter să fii primul care primește cele mai noi recomandări de proprietăți și sfaturi de la experți.