Spatiu comercial, 112.80 mp, zona Centru

198.000 €
1,767.86 € / mp

Central, Craiova

Suprafață utilă totală:
112,8 mp
Nr. niveluri:
4

Descriere spațiu comercial

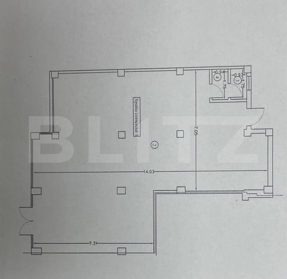
Blitz va propune spre vanzare un spatiu comercial situat intr-o zona semicentrala, cu acces facil si vizibilitate buna, avand o suprafata totala de 112,8 mp. Spatiul este nou si se preda la gri, oferind viitorului proprietar libertatea de a-l finisa si compartimenta in functie de propriile nevoi si concept. Datorita suprafetei generoase si a pozitionarii avantajoase, spatiul este potrivit pentru multiple destinatii, precum: birouri, cabinet medical, salon de infrumusetare, showroom, magazin de prezentare, sediu firma sau alte activitati comerciale. Pretul este plus TVA. Cod oferta / ID BLITZ: P162090 Nr grupuri sanitare: 2 Nr incaperi: 1 Utilitati - Sistem incalzire (Centrala proprie); Utilitati generale (Curent,Apa,Canalizare,Gaz) Finisaje - Izolatii termice (Exterior); Ferestre cu geam termopan (PVC) pret vanzare: 198000 moneda vanzare: EUR Disponibilitate proprietate: imediat
Citește mai mult Citește mai puțin

Detalii spațiu comercial

ID anunț: 3782074 Actualizat în: 10 Martie 2026
Suprafață utilă: 112,8 mp
Suprafață utilă totală: 112,8 mp
Regim înălțime: P+4E

Istoric preț

Facilități

Utilități
Curent Apă Canalizare Gaze
Sistem încălzire
Centrală proprie
Mobilat
Nemobilat
Izolații termice
Exterior
Ferestre cu geam termopan
PVC

Puncte de interes

Mijloace transport
transport
Drumul Fabricii
Mijloace transport aprox. 707 m
transport
Aprozar
Mijloace transport aprox. 783 m
transport
Compania de Apa
Mijloace transport aprox. 822 m
transport
Compania de Apa
Mijloace transport aprox. 831 m
Școală
education
Liceul Charles Laugier
Învățământ aprox. 737 m
education
Colegiul Tehnic de Industrie Alimentara
Învățământ aprox. 986 m
education
Facultatea de Educatie Fizica si Sport
Învățământ aprox. 1027 m
education
Scoala Gimnaziala 1 Obedeanu
Învățământ aprox. 1119 m
Recreere
parks
Teren sportiv
Recreere aprox. 799 m
restaurants
Fornetti
Restaurante aprox. 815 m
shopping
Supeco
Supermarket/Mall aprox. 1189 m
shopping
Cocosul Vesel
Supermarket/Mall aprox. 1202 m

Proprietăți similare

Spațiu comercial, de 112.80000305176 mp, în Central
198.000 €
Craiova, Central
112,8 mp utili
4E
Spațiu comercial, de 137 mp, în Central
180.000 €
Craiova, Central
137 mp utili
4E
Spațiu comercial, de 360 mp, în Brestei
210.000 €
Craiova, Brestei
360 mp utili
1E
Spațiu industrial, în Exterior Nord
190.000 €
Craiova, Exterior Nord
1E
Spațiu comercial, de 140 mp, în Calea Severinului
215.000 €
Craiova, Calea Severinului
140 mp utili
141 mp teren
Spațiu comercial, de 460 mp, în Giubega
215.000 €
Județul Dolj, Giubega
460 mp utili
Spațiu industrial, de 300 mp, în Ghercești
205.000 €
Județul Dolj, Ghercești
300 mp utili
2016

Abonează-te la newsletter să fii primul care primește cele mai noi recomandări de proprietăți și sfaturi de la experți.