Tomis Plus, SPATIU COMERCIAL 128 mp.

220.000 €
1,718.75 € / mp

Tomis Plus, Constanţa

Suprafață utilă totală:
128 mp
An construcție:
2013

Descriere spațiu comercial

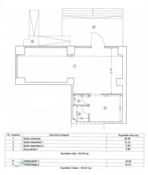
Agenția Zig-Zag vă propune spre închiriere un spațiu comercial cu poziționare strategică, amplasat direct la Bd. Tomis, în zona Tomis Plus – una dintre cele mai dinamice și în continuă dezvoltare zone ale orașului. Cu o suprafață totală de 128 mp, spațiul este compus din: - 83 mp. utili interior, open space, cu posibilitate de re/compartimentare in functie de necesitati; - două terase generoase in proprietate, de 11 mp. și 35 mp.; - vitrină amplă, cu deschidere de 13 ml + 6 ml. Expunerea vitrată impresionantă oferă vizibilitate maximă și lumină naturală abundentă, asigurând un impact vizual puternic pentru orice tip de activitate comercială sau de servicii. Configurația spațiului permite adaptarea pentru: showroom, cafenea / concept store, servicii premium, clinică / cabinet, birou reprezentativ etc. Amplasamentul la bulevard, într-o zonă rezidențială consolidată, garantează trafic constant și potențial comercial ridicat. Proprietar persoana juridic ( pret+TVA). Pentru informații suplimentare și stabilirea unei vizionări, vă invităm să ne contactați.
Citește mai mult Citește mai puțin

Detalii spațiu comercial

ID anunț: 3735498 Actualizat în: 24 Martie 2026
Suprafață utilă: 128 mp
Suprafață utilă totală: 128 mp
An construcție: 2013

Istoric preț

Facilități

Utilități
Curent Apă Canalizare

Puncte de interes

Mijloace transport
transport
Statia Carrefour, autobuzele 100C, 43C
Mijloace transport aprox. 761 m
transport
Carrefour [43C 100C]
Mijloace transport aprox. 826 m
transport
Sere[3 43C 100C]
Mijloace transport aprox. 1150 m
transport
Sere[3 43C 100C]
Mijloace transport aprox. 1260 m
Școală
education
Baza nautica UMC
Învățământ aprox. 1557 m
education
Scoala Nr. 14
Învățământ aprox. 1577 m
education
Şcoala cu Clasele I-VIII Nr.14
Învățământ aprox. 1577 m
education
Gradinita Nr.39
Învățământ aprox. 1586 m
Recreere
shopping
Carrefour
Supermarket/Mall aprox. 579 m
shopping
Centrul Comercial Tom
Supermarket/Mall aprox. 638 m
parks
Parc
Recreere aprox. 1473 m
restaurants
Taverna Sarbului
Restaurante aprox. 1738 m

Proprietăți similare

Spațiu comercial, de 67 mp, în Ultracentral
239.000 €
Constanța, Ultracentral
67 mp utili
Spațiu comercial, de 100 mp, în Central
200.000 €
Constanța, Central
100 mp utili
1E
Spațiu comercial, de 75 mp, în Tomis Nord
199.999 €
Constanța, Tomis Nord
75 mp utili
10E
1985
Proprietate specială, de 91 mp, în Central
215.000 €
Constanța, Central
91 mp utili
1E
2006
Spațiu comercial, de 100 mp, în Capitol
215.000 €
Constanța, Capitol
100 mp utili
Hotel/Pensiune, de 20 mp, în Costinești
215.000 €
Județul Constanța, Costinești
20 mp utili
Hotel/Pensiune, de 170 mp, în Techirghiol
200.000 €
Județul Constanța, Techirghiol
170 mp utili
1E
2025
Hotel/Pensiune, de 260 mp, în Costinești
198.000 €
Județul Constanța, Costinești
260 mp utili
1E
2008
Spațiu comercial, de 350 mp, în Costinești
220.000 €
Județul Constanța, Costinești
350 mp utili
350 mp teren

Abonează-te la newsletter să fii primul care primește cele mai noi recomandări de proprietăți și sfaturi de la experți.