Spațiu comercial de vânzare – poziție excelentă, vad stradal intens

132.000 €
2,315.79 € / mp

Inel II, Constanţa

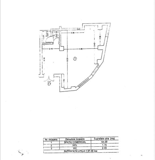
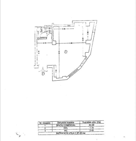
Suprafață utilă totală:
57,49 mp
An construcție:
2006

Descriere spațiu comercial

Agenție imobiliară vă propune spre vânzare un spațiu comercial modern, situat într-o zonă cu vizibilitate foarte bună – în proximitatea Institutului de Marină, cu deschidere directă la bulevard. Proprietatea este amplasată la parterul unui imobil nou, beneficiind de acces facil și expunere excelentă, fiind ideală pentru desfășurarea diverselor activități comerciale sau de servicii. 📐 Suprafață utilă: 57,49 mp 🏢 Compartimentare eficientă, ce permite amenajare flexibilă 🚪 Acces direct din stradă 👀 Vitrină generoasă – vizibilitate maximă pentru brandul dumneavoastră 📍 Zonă cu trafic pietonal și auto intens 💼 Recomandat pentru: showroom, birou, salon, cabinet sau investiție în vederea închirierii. 💰 Preț: 132.000 € 📊 Comision agenție: 2% Pentru mai multe detalii sau programarea unei vizionări, nu ezitați să ne contactați. Echipa noastră vă stă la dispoziție pentru a vă oferi suport complet în procesul de achiziție.
Citește mai mult Citește mai puțin

Detalii spațiu comercial

Actualizat în: 02 Aprilie 2026 ID anunț: 1404935
Suprafață utilă: 57,49 mp
Suprafață utilă totală: 57,49 mp
An construcție: 2006

Istoric preț

Facilități

Utilități
Gaze Apă Curent

Puncte de interes

Mijloace transport
transport
Institutul de Marina [102
Mijloace transport aprox. 196 m
transport
Scoala 23 [102
Mijloace transport aprox. 210 m
transport
Scoala 23 [102
Mijloace transport aprox. 272 m
transport
Statia Baba Novac; Linia 102
Mijloace transport aprox. 272 m
Școală
education
Academia Navală Mircea cel Bătrân
Învățământ aprox. 75 m
education
Gradinita Calutul de Mare
Învățământ aprox. 146 m
education
Şcoala cu Clasele I-VIII "Constantin Brâncoveanu"
Învățământ aprox. 190 m
education
Şcoala nr.23
Învățământ aprox. 208 m
Recreere
restaurants
Bar No Limit
Restaurante aprox. 245 m
parks
Teren sportiv
Recreere aprox. 263 m
shopping
SYM Supermarket
Supermarket/Mall aprox. 511 m
shopping
Marvimex
Supermarket/Mall aprox. 628 m

Proprietăți similare

Spațiu comercial, de 131 mp, în Central
122.000 €
Constanța, Central
131 mp utili
2012
Spațiu comercial, de 57 mp, în Central
130.000 €
Constanța, Central
57 mp utili
2010
Spațiu comercial, de 130.52 mp, în Central
122.000 €
Constanța, Central
130,52 mp utili
2011
Spațiu comercial, de 168 mp, în Mihail Kogălniceanu
145.000 €
Județul Constanța, Mihail Kogălniceanu
168 mp utili
1.070 mp teren
2016
Spațiu comercial, de 90 mp, în Palas
139.900 €
Constanța, Palas
90 mp utili
2005
Spațiu comercial, de 65 mp, în Anda
145.000 €
Constanța, Anda
65 mp utili
Spațiu comercial, de 130 mp, în Faleza Nord
122.000 €
Constanța, Faleza Nord
130 mp utili
Spațiu comercial, de 53.55 mp, în Central
125.000 €
Constanța, Central
53,55 mp utili
2026
Spațiu comercial, de 772 mp, în Valu lui Traian
140.000 €
Județul Constanța, Valu lui Traian
772 mp utili

Abonează-te la newsletter să fii primul care primește cele mai noi recomandări de proprietăți și sfaturi de la experți.