Spatiu comercial de vanzare in Buna Ziua, Cluj Napoca

6.000.000 €
3,296.70 € / mp

Zorilor, Cluj-Napoca

Suprafață utilă totală:
1.820 mp
Nr. niveluri:
3
An construcție:
2022

Descriere spațiu comercial

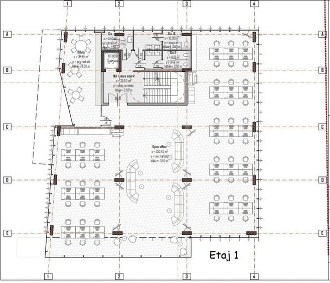
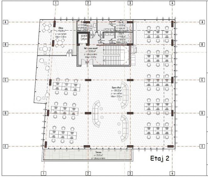
Imobil functiuni mixte, 1820 mp, Calea Turzii! Va propunem spre vanzare un imobil comercial cu functiuni mixte si de birouri situat in zona Calea Turzii desfasurat pe o suprafata utila de 1820 mp cu 20 de locuri de parcare. Spatiul se preteaza pentru activitati de birou, activitati medicale, comerciale la nivelul parterului etc. Imobilul propus are un regim de inaltime S+P+2E+Er fiind compartimentat astfel: - Subsol: parcari subterane; - Parter: spatiu comercial, spatiu de depozitare, receptie, 2 grupuri sanitare, terasa, casa scarii, hol, 2 accese; - Etaj 1: open office, oficiu, 3 grupuri sanitare; - Etaj 2: open office, oficiu, 3 grupuri sanitare, terasa; - Etaj Retras: open office, oficiu, 2 grupuri sanitare, terasa; Cladirea se preda finisata complet la exterior cu curtea amenajata. Termen de predare iulie 2022. Pentru mai multe detalii sau pentru programarea unei vizionari, va stam cu drag la dispozitie, Echipa Napoca Imobiliare! ID oferta: 112225
Citește mai mult Citește mai puțin

Detalii spațiu comercial

Actualizat în: 02 Aprilie 2026 ID anunț: 883683
Suprafață utilă: 1.820 mp
Suprafață utilă totală: 1.820 mp
Regim înălțime: P+3E
An construcție: 2022

Istoric preț

Facilități

Utilități
Curent Apă Canalizare Gaze

Puncte de interes

Mijloace transport
transport
W.A. Mozart
Mijloace transport aprox. 252 m
transport
Statia Auto Transilvania, Linia 21, 40
Mijloace transport aprox. 253 m
transport
Meteor
Mijloace transport aprox. 339 m
transport
Constantin Noica
Mijloace transport aprox. 351 m
Școală
education
Liceul de Informatica Tiberiu Popoviciu
Învățământ aprox. 356 m
education
Liceul de Informatica "Tiberiu Popoviciu"
Învățământ aprox. 372 m
education
Facultatea Arte Plastice, Sectia Foto-Video
Învățământ aprox. 449 m
education
Cladirea Observator a Universitatii Tehnice din Cluj-Napoca
Învățământ aprox. 552 m
Recreere
parks
Parc
Recreere aprox. 375 m
restaurants
Restaurant Rod
Restaurante aprox. 386 m
shopping
Lidl
Supermarket/Mall aprox. 531 m
shopping
Sigma Shopping Center
Supermarket/Mall aprox. 533 m

Proprietăți similare

Birou, de 2,400 mp, în Zorilor
5.750.000 €
Cluj-Napoca, Zorilor
2.400 mp utili
4E
Birou, de 4,904 mp, în Gruia
6.292.000 €
Cluj-Napoca, Gruia
4.904 mp utili
2021
Spațiu comercial, de 1,400 mp, în Central
5.800.000 €
Cluj-Napoca, Central
1.400 mp utili
5E
Spațiu comercial, de 8,000 mp, în Baciu
6.100.000 €
Județul Cluj, Baciu
8.000 mp utili
4.461 mp teren
Spațiu comercial, de 1,148 mp, în Central
5.500.000 €
Cluj-Napoca, Central
1.148 mp utili
Spațiu comercial, de 1,148 mp, în Zorilor
5.500.000 €
Cluj-Napoca, Zorilor
1.148 mp utili
Spațiu comercial, de 8,000 mp, în Bună Ziua
6.100.000 €
Cluj-Napoca, Bună Ziua
8.000 mp utili
Spațiu comercial, de 8,000 mp, în Central
6.100.000 €
Cluj-Napoca, Central
8.000 mp utili
11E

Abonează-te la newsletter să fii primul care primește cele mai noi recomandări de proprietăți și sfaturi de la experți.