Spatiu comercial Calea Manastur 405 mp Oferta Speciala Comision ZERO

648.000 €
1,596.06 € / mp

Mănăştur, Cluj-Napoca

Suprafață utilă totală:
406 mp
Nr. niveluri:
2
An construcție:
1988

Descriere spațiu comercial

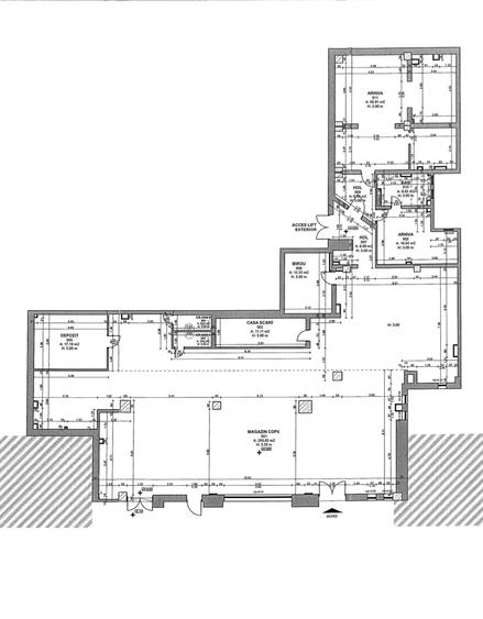
Va prezentam o oportunitate de achizitie a unei locatii comerciale, care se preteaza la servicii medicale, alte servicii sau magazin de prezentare. Acces facil direct la Calea Manastur sau din strada Primaverii. Pretul este negociabil si proprietarul este dispus la diferite variante de plata si/sau parteneriat. Spatiul are in total 406 mp si este compartimentat in doua zone, cu CF-uri distincte: a) 223 mp spatiu utilitate comerciala cu anexe grupuri sanitate, casa scari acces parcare in spatele cladirii (parcarile sunt domeniu public si se preteaza la inchiriere de la Primaria Cluj Napoca) b) 183 mp cu destinatie magaziim lift, birou, spalatorie, cu utilizare diversa. Inaltimea utila este de peste 3,50 m si se preteaza inclusiv la autorizare activati medicale, dealtfel in imediata vecinatate se afla un laborator de analize medicale si un centru de recuperare medicala. Spatiul este dotat cu ferestre si usi acces termopan, cu toate utilitatile active, avand centrala termica proprie. La etaj, spatiul este similar si este in proprietatea unui alt agent economis si este disponibil la inchiriere. Va asteptam la vizionare sau cu solicitare detalii suplimentare (7 zile din 7).
Citește mai mult Citește mai puțin

Detalii spațiu comercial

ID anunț: 3720202 Actualizat în: 04 Martie 2026
Suprafață utilă: 406 mp
Suprafață utilă totală: 406 mp
Regim înălțime: P+2E
An construcție: 1988

Istoric preț

Facilități

Utilități
Gaze Curent Canalizare Apă

Puncte de interes

Mijloace transport
transport
Grigore Alexandrescu
Mijloace transport aprox. 98 m
transport
Statia Gr Alexandrescu1TRV, 102
Mijloace transport aprox. 122 m
transport
Calvaria
Mijloace transport aprox. 123 m
transport
Statia Gr. Alexandrescu -intors Linia 1, 102, 25,7
Mijloace transport aprox. 279 m
Școală
education
Grăd.Albinuţa
Învățământ aprox. 156 m
education
Scoala Generala Eugen Pora
Învățământ aprox. 235 m
education
Liceul Teoretic Eugen Pora
Învățământ aprox. 254 m
education
Liceul Teologic Adventist Maranatha
Învățământ aprox. 402 m
Recreere
restaurants
Pizza X
Restaurante aprox. 14 m
parks
Parc
Recreere aprox. 98 m
shopping
Profi
Supermarket/Mall aprox. 332 m
shopping
Kaufland
Supermarket/Mall aprox. 425 m

Proprietăți similare

Spațiu comercial, de 313 mp, în Mănăștur
650.000 €
Cluj-Napoca, Mănăștur
313 mp utili
Birou, de 236 mp, în Mărăști
601.800 €
Cluj-Napoca, Mărăști
236 mp utili
2E
1990
Spațiu comercial, de 170 mp, în Zorilor
700.000 €
Cluj-Napoca, Zorilor
170 mp utili
4E
2005
Birou, de 314 mp, în Plopilor
650.000 €
Cluj-Napoca, Plopilor
314 mp utili
Spațiu comercial, de 258 mp, în Mărăști
645.000 €
Cluj-Napoca, Mărăști
258 mp utili
8E
Spațiu comercial, de 176.64999389648 mp, în Grigorescu
700.000 €
Cluj-Napoca, Grigorescu
176,65 mp utili
2024
Birou, de 500 mp, în Gheorgheni
700.000 €
Cluj-Napoca, Gheorgheni
500 mp utili
10E
Spațiu comercial, de 204 mp, în Andrei Mureșanu
620.000 €
Cluj-Napoca, Andrei Mureșanu
204 mp utili
Spațiu comercial, de 120 mp, în Mărăști
600.000 €
Cluj-Napoca, Mărăști
120 mp utili
8E
1980

Abonează-te la newsletter să fii primul care primește cele mai noi recomandări de proprietăți și sfaturi de la experți.