Spatiu comercial pretabil club, restaurant

480.000 €
257.23 € / mp

Buşteni, Judeţul Prahova

Suprafață utilă totală:
1.866 mp

Descriere spațiu comercial

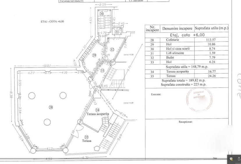
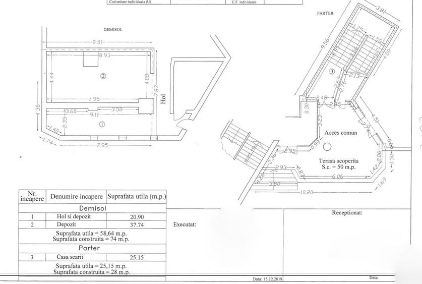
De vanzare spatiu comercial structurat pe demisol-parter-etaj-mansarda situat in cartierul Silva, in apropierea telecabinei, parcului,a traseelor turistice, precum si a salii de sport a orasului. Suprafata Utila desfasurata totala D+P+E+M 1521.73 mp , din care terase 81.55 mp Suprafata Construita desfasurata totala D+P+E+M 1866 mp Cladirea este construita din cadre de beton, pereti din beton si caramida, plansee beton. A avut ca si domeniu de activitate anterior restaurant si club. Dispune de numeroase spatii destinate prepararii alimentelor, spatii de depozitare, acces clienti, acces aprovizionare, lift destinat produselor, centrale termice (scoase din uz). Spatiile utile generoase pot primi pana la cateva sute de clienti simultan. Se poate transforma si in spatiu rezidential cu apartamente de locuit. Curent electric monofazat/trifazat, apa, canalizare, gaze naturale(momentan debransat). Posibilitate parcare autoturisme vis-a-vis de cladire. Cladirea necesita renovare la interior, pretul este negociabil.
Citește mai mult Citește mai puțin

Detalii spațiu comercial

ID anunț: 314585 Actualizat în: 04 Septembrie 2025
Suprafață utilă: 1.866 mp
Suprafață utilă totală: 1.866 mp

Istoric preț

Puncte de interes

Recreere
parks
Parcul Schiel
Recreere aprox. 40 m
parks
Teren sportiv
Recreere aprox. 258 m
restaurants
Pensiune Casa Alba
Restaurante aprox. 1133 m
restaurants
Pensiunea Casa Magica 3*
Restaurante aprox. 1134 m

Proprietăți similare

Hotel/Pensiune, de 412.92999267578 mp, în Sud
460.000 €
Județul Prahova, Slănic
412,93 mp utili
2009
Spațiu industrial, de 3,824 mp, în B-dul București
499.000 €
Ploiești, B-dul București
3.824 mp utili
1975
Spațiu comercial, de 600 mp, în Valea Călugărească
450.000 €
Județul Prahova, Valea Călugărească
600 mp utili
Birou, de 284 mp, în Central
475.000 €
Ploiești, Central
284 mp utili
1973
Spațiu comercial, de 510 mp, în Ultracentral
499.999 €
Ploiești, Ultracentral
510 mp utili
1E
2008
Spațiu comercial, de 500 mp, în Albești-Paleologu
525.000 €
Județul Prahova, Albești-Paleologu
500 mp utili
Hotel/Pensiune, de 41.666698455811 mp, în Teșila
495.000 €
Județul Prahova, Teșila
41,67 mp utili
1E
Hotel/Pensiune, de 1,415 mp, în Măneciu-Ungureni
520.000 €
Județul Prahova, Măneciu-Ungureni
1.415 mp utili
2.639 mp teren
Spațiu comercial, de 1,570 mp, în Central
475.000 €
Ploiești, Central
1.570 mp utili
1E
1946

Abonează-te la newsletter să fii primul care primește cele mai noi recomandări de proprietăți și sfaturi de la experți.